Woning Leenderweg 230 Eindhoven

Leenderweg 230, 5644AC Eindhoven

Ontvang updates voor Kerstroosplein

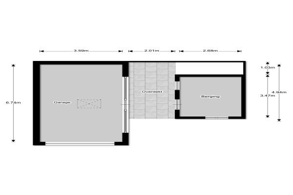
Het adres van deze woning uit 1948 is Leenderweg 230 te Eindhoven. Het pand heeft een oppervlakte van 128m² en een perceeloppervlakte van 250m² en heeft 6 kamers kamers waarvan 3 slaapkamers. De geschatte waarde van deze woning is € 389.000.

Bekijk alle woningen in Kerstroosplein

Gegevens van Eengezinswoning, hoekwoning

Bouwjaar
1948
Geschatte waarde
€ 389.000
Oppervlakte
128 m2
Inhoud
499 m3
Aantal kamers
6 kamers
Slaapkamers
3
Badkamers
1 badkamer en 2 aparte toiletten
Soort bouw
Bestaande bouw
Eigendomssituatie
Volle eigendom
Ligging
Aan drukke weg, in centrum, in woonwijk en in bosrijke omgeving
Tuin
Achtertuin en voortuin
Achtertuin
130 m² (10m diep en 13m breed)

Voorzieningen in de buurt

Binnenkijken bij Leenderweg 230 te Eindhoven

Meer meldingen in deze omgeving

Nieuw bedrijf
November 2025
Pioenroosstraat 40, 5644CD Eindhoven

Nieuw bedrijf
November 2025
Winkelstraat 1, 5644EK Eindhoven

Nieuw bedrijf
November 2025
Pioenroosstraat 47, 5644CA Eindhoven

Nieuw bedrijf
November 2025
Wilgenroosstraat 1, 5644CE Eindhoven

Binnenkijken bij
Dinsdag 25-11-2025
Appelbloesemstraat 12, 5644CT Eindhoven

Onroerend goed
Vrijdag 14-11-2025
Leenderweg 298-C, 5644AE Eindhoven

Binnenkijken bij
Vrijdag 14-11-2025
Pioenroosstraat 10, 5644CC Eindhoven

Binnenkijken bij
Dinsdag 11-11-2025
Zonneroosstraat 34, 5644ET Eindhoven

Direct een e-mail ontvangen bij nieuwe meldingen in deze regio?

Meld je dan GRATIS aan voor de Oozo Alert service voor Kerstroosplein

Instellen

Meer nieuws in Kerstroosplein

Weten hoe eenvoudig het is om af te vallen? Zonder pillen en smeersels en zonder je in het zweet te werken!
Kijk op eenvoudig-afvallen.nl

© 2012 - 2025 OOZO.nl - info@oozo.nl - Gegevens verwijderen? | Disclaimer | Privacy statement