Woning Le Sage ten Broeklaan 61 Eindhoven

Le Sage ten Broeklaan 61, 5615CR Eindhoven

Ontvang updates voor Looiakkers

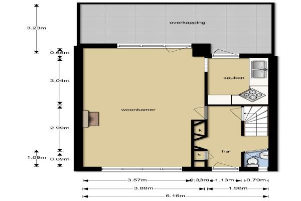
Het adres van deze woning uit 1957 is Le Sage ten Broeklaan 61 te Eindhoven. Het pand heeft een oppervlakte van 124m² en een perceeloppervlakte van 183m² en heeft 6 kamers kamers waarvan 5 slaapkamers. De geschatte waarde van deze woning is € 395.000.

Bekijk alle woningen in Looiakkers

Gegevens van Eengezinswoning, tussenwoning

Bouwjaar
1957
Geschatte waarde
€ 395.000
Oppervlakte
124 m2
Inhoud
445 m3
Aantal kamers
6 kamers
Slaapkamers
5
Badkamers
1 badkamer en 1 apart toilet
Soort bouw
Bestaande bouw
Eigendomssituatie
Volle eigendom
Ligging
Aan rustige weg, in centrum en in woonwijk
Tuin
Achtertuin en voortuin
Achtertuin
88 m² (14m diep en 6,3m breed)

Voorzieningen in de buurt

Binnenkijken bij Le Sage ten Broeklaan 61 te Eindhoven

Meer meldingen in deze omgeving

Nieuw bedrijf
April 2026
Elzentlaan 50, 5615CN Eindhoven

Nieuw bedrijf
April 2026
Le Sage ten Broeklaan 1901, 5615CP Eindhoven

Nieuw bedrijf
April 2026
Le Sage ten Broeklaan 1901, 5615CP Eindhoven

Binnenkijken bij
Maandag 6-4-2026
Le Sage ten Broeklaan 943, 5615CP Eindhoven

Binnenkijken bij
Woensdag 1-4-2026
Le Sage ten Broeklaan 1921, 5615CP Eindhoven

Nieuw bedrijf
Maart 2026
Le Sage ten Broeklaan 1103, 5615CP Eindhoven

Binnenkijken bij
Vrijdag 27-2-2026
Aalsterweg 132C, 5615CJ Eindhoven

Onroerend goed
Zaterdag 21-2-2026
Hofdijkstraat, 5615CP Eindhoven

Direct een e-mail ontvangen bij nieuwe meldingen in deze regio?

Meld je dan GRATIS aan voor de Oozo Alert service voor Looiakkers

Instellen

Meer nieuws in Looiakkers

Weten hoe eenvoudig het is om af te vallen? Zonder pillen en smeersels en zonder je in het zweet te werken!
Kijk op eenvoudig-afvallen.nl

© 2012 - 2026 OOZO.nl - info@oozo.nl - Gegevens verwijderen? | Disclaimer | Privacy statement