Woning Carel Willinkstraat 38 Eindhoven

Carel Willinkstraat 38, 5645LJ Eindhoven

Ontvang updates voor Puttense Dreef

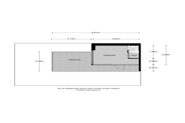
Het adres van deze woning uit 2003 is Carel Willinkstraat 38 te Eindhoven. Het pand heeft een oppervlakte van 118m² en een perceeloppervlakte van 134m² en heeft 5 kamers kamers waarvan 4 slaapkamers. De geschatte waarde van deze woning is € 289.500.

Bekijk alle woningen in Puttense Dreef

Gegevens van Eengezinswoning, tussenwoning

Bouwjaar
2003
Geschatte waarde
€ 289.500
Oppervlakte
118 m2
Inhoud
400 m3
Aantal kamers
5 kamers
Slaapkamers
4
Badkamers
1 badkamer en 2 aparte toiletten
Soort bouw
Bestaande bouw
Eigendomssituatie
Volle eigendom
Ligging
Aan rustige weg en in woonwijk
Tuin
Voortuin

Voorzieningen in de buurt

Binnenkijken bij Carel Willinkstraat 38 te Eindhoven

Meer meldingen in deze omgeving

Binnenkijken bij
Dinsdag 5-5-2026
Carel Willinkstraat 33, 5645LH Eindhoven

112 melding
Vrijdag 1-5-2026 om 08:43
Thomas Moredreef, 5645KE Eindhoven

112 melding
Donderdag 16-4-2026 om 17:44
Spilmanstraat, 5645JE Eindhoven

112 melding
Donderdag 16-4-2026 om 17:41
Spilmanstraat, 5645JE Eindhoven

Binnenkijken bij
Dinsdag 14-4-2026
Poggenbeekstraat 25, 5645JL Eindhoven

Nieuw bedrijf
April 2026
Carel Willinkstraat 60, 5645LJ Eindhoven

Binnenkijken bij
Maandag 6-4-2026
Mondriaanhof 6, 5645JD Eindhoven

Binnenkijken bij
Vrijdag 27-3-2026
Thomas Moredreef 20, 5645KE Eindhoven

Direct een e-mail ontvangen bij nieuwe meldingen in deze regio?

Meld je dan GRATIS aan voor de Oozo Alert service voor Puttense Dreef

Instellen

Meer nieuws in Puttense Dreef

Weten hoe eenvoudig het is om af te vallen? Zonder pillen en smeersels en zonder je in het zweet te werken!
Kijk op eenvoudig-afvallen.nl

© 2012 - 2026 OOZO.nl - info@oozo.nl - Gegevens verwijderen? | Disclaimer | Privacy statement