Woning Petrus Dondersstraat 52 Eindhoven

Petrus Dondersstraat 52, 5614AH Eindhoven

Ontvang updates voor Tuindorp

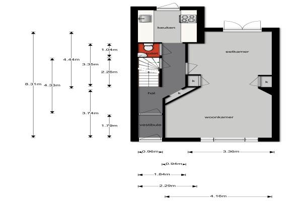
Het adres van deze woning uit 1947 is Petrus Dondersstraat 52 te Eindhoven. Het pand heeft een oppervlakte van 131m² en een perceeloppervlakte van 202m² en heeft 6 kamers kamers waarvan 4 slaapkamers. De geschatte waarde van deze woning is € 400.000.

Bekijk alle woningen in Tuindorp

Gegevens van Eengezinswoning, tussenwoning

Bouwjaar
1947
Geschatte waarde
€ 400.000
Oppervlakte
131 m2
Inhoud
506 m3
Aantal kamers
6 kamers
Slaapkamers
4
Badkamers
1 badkamer en 2 aparte toiletten
Soort bouw
Bestaande bouw
Eigendomssituatie
Volle eigendom
Ligging
Aan rustige weg en in woonwijk
Tuin
Achtertuin en voortuin
Achtertuin
132 m² (22m diep en 6m breed)

Voorzieningen in de buurt

Binnenkijken bij Petrus Dondersstraat 52 te Eindhoven

Meer meldingen in deze omgeving

Binnenkijken bij
Donderdag 15-1-2026
Petrus Dondersstraat 109, 5613LS Eindhoven

Binnenkijken bij
Donderdag 15-1-2026
St Hubertusstraat 30, 5614CJ Eindhoven

Binnenkijken bij
Dinsdag 13-1-2026
Petrus Dondersstraat 118, 5614AK Eindhoven

Binnenkijken bij
Vrijdag 9-1-2026
St Adrianusstraat 23, 5614EL Eindhoven

Nieuw bedrijf
Januari 2026
St Christoffelstraat 1, 5614BM Eindhoven

Nieuw bedrijf
Januari 2026
St Jansweg 10, 5614ES Eindhoven

Nieuw bedrijf
December 2025
St Adrianusstraat 19, 5614EL Eindhoven

Nieuw bedrijf
December 2025
St Adrianusstraat 19, 5614EL Eindhoven

Direct een e-mail ontvangen bij nieuwe meldingen in deze regio?

Meld je dan GRATIS aan voor de Oozo Alert service voor Tuindorp

Instellen

Meer nieuws in Tuindorp

Weten hoe eenvoudig het is om af te vallen? Zonder pillen en smeersels en zonder je in het zweet te werken!
Kijk op eenvoudig-afvallen.nl

© 2012 - 2026 OOZO.nl - info@oozo.nl - Gegevens verwijderen? | Disclaimer | Privacy statement