Woning Moerdijkstraat 25 Eindhoven

Moerdijkstraat 25, 5652JM Eindhoven

Ontvang updates voor Het Ven

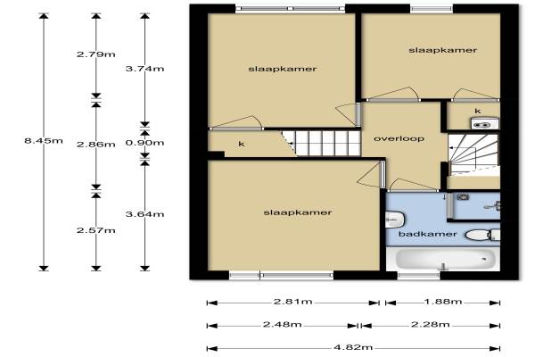
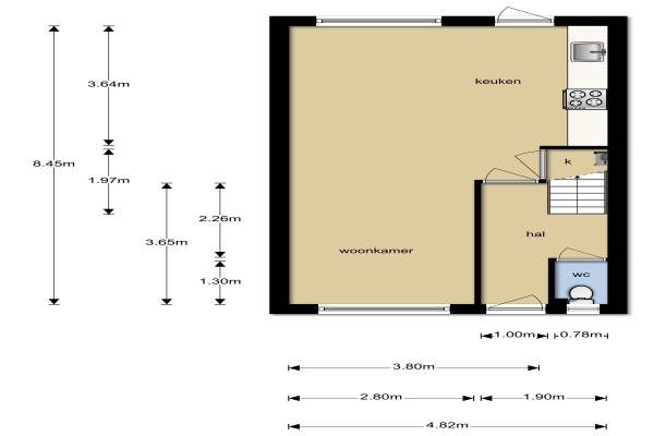
Het adres van deze woning uit 1935 is Moerdijkstraat 25 te Eindhoven. Het pand heeft een oppervlakte van 102m² en een perceeloppervlakte van 148m² en heeft 5 kamers kamers waarvan 4 slaapkamers. De geschatte waarde van deze woning is € 250.000.

Bekijk alle woningen in Het Ven

Gegevens van Eengezinswoning, eindwoning

Bouwjaar
1935
Geschatte waarde
€ 250.000
Oppervlakte
102 m2
Inhoud
368 m3
Aantal kamers
5 kamers
Slaapkamers
4
Badkamers
1 badkamer en 1 apart toilet
Soort bouw
Bestaande bouw
Eigendomssituatie
Volle eigendom
Ligging
Aan rustige weg en in woonwijk
Tuin
Achtertuin en voortuin
Achtertuin
65 m² (13m diep en 5m breed)

Voorzieningen in de buurt

Binnenkijken bij Moerdijkstraat 25 te Eindhoven

Meer meldingen in deze omgeving

Binnenkijken bij
Donderdag 12-2-2026
Bergen op Zoomstraat 69, 5652KB Eindhoven

Faillissement
Woensdag 11-2-2026
Zeelsterstraat 145, 5652EE EINDHOVEN

Nieuw bedrijf
Februari 2026
Moerdijkstraat 13, 5652JM Eindhoven

Nieuw bedrijf
Februari 2026
St Theresiastraat 9, 5652ES Eindhoven

Nieuw bedrijf
Februari 2026
Gerard Noodtstraat 19, 5652LM Eindhoven

112 melding
Donderdag 29-1-2026 om 20:24
Zeelsterstraat, Eindhoven

112 melding
Woensdag 28-1-2026 om 13:35
Rijstenweg, 5652CG Eindhoven

112 melding
Maandag 26-1-2026 om 15:06
Rijstenweg, 5652CG Eindhoven

Direct een e-mail ontvangen bij nieuwe meldingen in deze regio?

Meld je dan GRATIS aan voor de Oozo Alert service voor Het Ven

Instellen

Meer nieuws in Het Ven

Weten hoe eenvoudig het is om af te vallen? Zonder pillen en smeersels en zonder je in het zweet te werken!
Kijk op eenvoudig-afvallen.nl

© 2012 - 2026 OOZO.nl - info@oozo.nl - Gegevens verwijderen? | Disclaimer | Privacy statement