Woning Meerzand 28 Eindhoven

Meerzand 28, 5658LJ Eindhoven

Ontvang updates voor Meerrijk

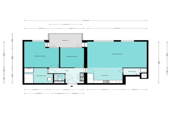
Het adres van deze woning uit 2012 is Meerzand 28 te Eindhoven. Het pand heeft een oppervlakte van 91m² en heeft 3 kamers kamers waarvan 2 slaapkamers. De geschatte waarde van deze woning is € 449.000.

Bekijk alle woningen in Meerrijk

Gegevens van Portiekflat (appartement)

Bouwjaar
2012
Geschatte waarde
€ 449.000
Oppervlakte
91 m2
Inhoud
299 m3
Aantal kamers
3 kamers
Slaapkamers
2
Badkamers
1 badkamer en 1 apart toilet
Soort bouw
Bestaande bouw
Eigendomssituatie
Volle eigendom
Ligging
Aan park, in centrum en open ligging

Voorzieningen in de buurt

Binnenkijken bij Meerzand 28 te Eindhoven

Meer meldingen in deze omgeving

Binnenkijken bij
Zaterdag 15-11-2025
Meerwater 172, 5658LN Eindhoven

Binnenkijken bij
Vrijdag 14-11-2025
Meerwater 190, 5658LN Eindhoven

Binnenkijken bij
Dinsdag 11-11-2025
Meerring 98, 5658LD Eindhoven

Binnenkijken bij
Woensdag 29-10-2025
Meerwater 262, 5658LN Eindhoven

Binnenkijken bij
Woensdag 29-10-2025
Meerzand 70, 5658LJ Eindhoven

Binnenkijken bij
Woensdag 29-10-2025
Meerring 148, 5658LD Eindhoven

Nieuw bedrijf
Oktober 2025
Meerplein 82, 5658LL Eindhoven

112 melding
Vrijdag 10-10-2025 om 12:29
Meerbos, Eindhoven

Direct een e-mail ontvangen bij nieuwe meldingen in deze regio?

Meld je dan GRATIS aan voor de Oozo Alert service voor Meerrijk

Instellen

Meer nieuws in Meerrijk

Weten hoe eenvoudig het is om af te vallen? Zonder pillen en smeersels en zonder je in het zweet te werken!
Kijk op eenvoudig-afvallen.nl

© 2012 - 2025 OOZO.nl - info@oozo.nl - Gegevens verwijderen? | Disclaimer | Privacy statement