Woning Fazantlaan 27 Eindhoven

Fazantlaan 27, 5613CB Eindhoven

Ontvang updates voor Villapark

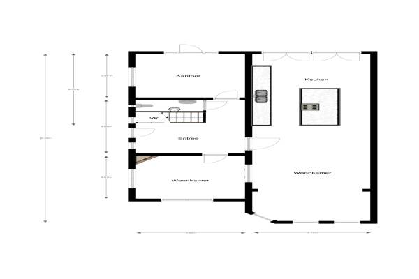
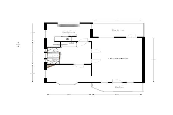
Het adres van deze woning uit 1909 is Fazantlaan 27 te Eindhoven. Het pand heeft een oppervlakte van 291m² en een perceeloppervlakte van 384m² en heeft 7 kamers kamers waarvan 5 slaapkamers. De geschatte waarde van deze woning is € 1.275.000.

Bekijk alle woningen in Villapark

Gegevens van Villa, halfvrijstaande woning

Bouwjaar
1909
Geschatte waarde
€ 1.275.000
Oppervlakte
291 m2
Inhoud
1250 m3
Aantal kamers
7 kamers
Slaapkamers
5
Badkamers
1 badkamer en 2 aparte toiletten
Soort bouw
Bestaande bouw
Eigendomssituatie
Volle eigendom
Ligging
In woonwijk
Tuin
Achtertuin, voortuin en zijtuin
Achtertuin
131 m² (10,5m diep en 12,5m breed)

Voorzieningen in de buurt

Binnenkijken bij Fazantlaan 27 te Eindhoven

Meer meldingen in deze omgeving

112 melding
Zondag 15-3-2026 om 02:08
Nachtegaallaan, 5611CV Eindhoven

112 melding
Zaterdag 14-3-2026 om 09:27
Koekoeklaan, Eindhoven

112 melding
Zaterdag 14-3-2026 om 09:27
Koekoeklaan, Eindhoven

Nieuw bedrijf
Maart 2026
Eksterlaan 15, 5613CE Eindhoven

Nieuw bedrijf
Maart 2026
Leeuweriklaan 10, 5613AG Eindhoven

112 melding
Vrijdag 27-2-2026 om 19:55
Gashouder, 5613CR Eindhoven

Binnenkijken bij
Vrijdag 27-2-2026
Goorstraat 6, 5613BM Eindhoven

Faillissement
Dinsdag 24-2-2026
Gasfabriek 10, 5613CP Eindhoven

Direct een e-mail ontvangen bij nieuwe meldingen in deze regio?

Meld je dan GRATIS aan voor de Oozo Alert service voor Villapark

Instellen

Meer nieuws in Villapark

Weten hoe eenvoudig het is om af te vallen? Zonder pillen en smeersels en zonder je in het zweet te werken!
Kijk op eenvoudig-afvallen.nl

© 2012 - 2026 OOZO.nl - info@oozo.nl - Gegevens verwijderen? | Disclaimer | Privacy statement