Woning Loirelaan 14 Eindhoven

Loirelaan 14, 5627WJ Eindhoven

Ontvang updates voor Achtse Barrier-Spaaihoef

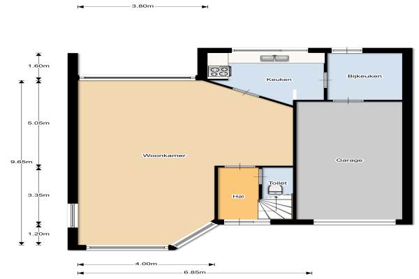
Het adres van deze woning uit 1990 is Loirelaan 14 te Eindhoven. Het pand heeft een oppervlakte van 194m² en een perceeloppervlakte van 401m² en heeft 7 kamers kamers waarvan 4 slaapkamers. De geschatte waarde van deze woning is € 499.000.

Bekijk alle woningen in Achtse Barrier-Spaaihoef

Gegevens van Eengezinswoning, vrijstaande woning

Bouwjaar
1990
Geschatte waarde
€ 499.000
Oppervlakte
194 m2
Inhoud
775 m3
Aantal kamers
7 kamers
Slaapkamers
4
Badkamers
1 badkamer en 2 aparte toiletten
Soort bouw
Bestaande bouw
Eigendomssituatie
Volle eigendom
Ligging
Aan rustige weg, in woonwijk en open ligging
Tuin
Achtertuin en voortuin
Achtertuin
188 m² (15m diep en 12,5m breed)

Voorzieningen in de buurt

Binnenkijken bij Loirelaan 14 te Eindhoven

Meer meldingen in deze omgeving

Nieuw bedrijf
Maart 2026
Tullelaan 10, 5627BA Eindhoven

Binnenkijken bij
Zondag 15-3-2026
Fransebaan 561, 5627JW Eindhoven

Binnenkijken bij
Zaterdag 14-3-2026
Armagnaclaan 20, 5627BL Eindhoven

112 melding
Vrijdag 13-3-2026 om 14:46
Languedoclaan, 5627BE Eindhoven

Binnenkijken bij
Maandag 9-3-2026
Fransebaan 430, 5627RG Eindhoven

Binnenkijken bij
Donderdag 5-3-2026
Seinelaan 87, 5627WD Eindhoven

Nieuw bedrijf
Maart 2026
Languedoclaan 15, 5627BE Eindhoven

Binnenkijken bij
Vrijdag 27-2-2026
Sartènelaan 14, 5627DZ Eindhoven

Direct een e-mail ontvangen bij nieuwe meldingen in deze regio?

Meld je dan GRATIS aan voor de Oozo Alert service voor Achtse Barrier-Spaaihoef

Instellen

Meer nieuws in Achtse Barrier-Spaaihoef

Weten hoe eenvoudig het is om af te vallen? Zonder pillen en smeersels en zonder je in het zweet te werken!
Kijk op eenvoudig-afvallen.nl

© 2012 - 2026 OOZO.nl - info@oozo.nl - Gegevens verwijderen? | Disclaimer | Privacy statement