Woning Falstaff 12 Eindhoven

Falstaff 12, 5629NK Eindhoven

Ontvang updates voor Blixembosch-Oost

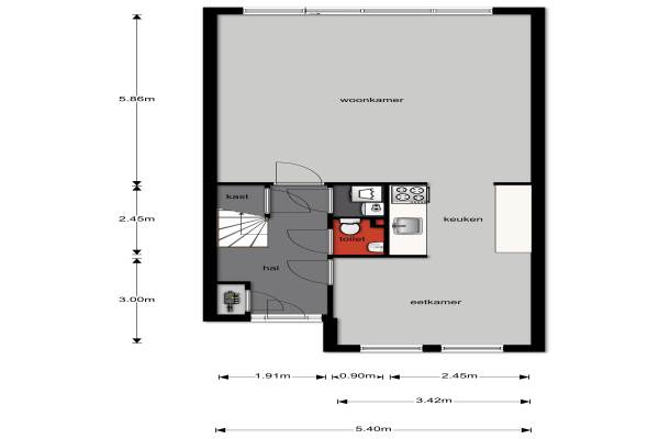
Het adres van deze woning uit 1998 is Falstaff 12 te Eindhoven. Het pand heeft een oppervlakte van 111m² en een perceeloppervlakte van 183m² en heeft 6 kamers kamers waarvan 4 slaapkamers. De geschatte waarde van deze woning is € 300.000.

Bekijk alle woningen in Blixembosch-Oost

Gegevens van Eengezinswoning, hoekwoning

Bouwjaar
1998
Geschatte waarde
€ 300.000
Oppervlakte
111 m2
Inhoud
370 m3
Aantal kamers
6 kamers
Slaapkamers
4
Badkamers
1 badkamer en 1 apart toilet
Soort bouw
Bestaande bouw
Eigendomssituatie
Volle eigendom
Ligging
Aan rustige weg en in woonwijk
Tuin
Achtertuin en voortuin
Achtertuin
70 m² (10m diep en 7m breed)

Voorzieningen in de buurt

Binnenkijken bij Falstaff 12 te Eindhoven

Meer meldingen in deze omgeving

Binnenkijken bij
Vrijdag 9-1-2026
Agatha Christielaan 17, 5629MB Eindhoven

Binnenkijken bij
Vrijdag 9-1-2026
Sprookjesbosch 77, 5629JB Eindhoven

Binnenkijken bij
Dinsdag 6-1-2026
Roverbruidegom 9, 5629KT Eindhoven

Binnenkijken bij
Dinsdag 6-1-2026
Ouverture 40, 5629PV Eindhoven

Binnenkijken bij
Dinsdag 6-1-2026
Otello 25, 5629NE Eindhoven

Binnenkijken bij
Zondag 4-1-2026
Buddy Boldenlaan 46, 5629RD Eindhoven

112 melding
Donderdag 1-1-2026 om 15:59
Aïda, 5629NP Eindhoven

Nieuw bedrijf
Januari 2026
King Oliverlaan 13, 5629RL Eindhoven

Direct een e-mail ontvangen bij nieuwe meldingen in deze regio?

Meld je dan GRATIS aan voor de Oozo Alert service voor Blixembosch-Oost

Instellen

Meer nieuws in Blixembosch-Oost

Weten hoe eenvoudig het is om af te vallen? Zonder pillen en smeersels en zonder je in het zweet te werken!
Kijk op eenvoudig-afvallen.nl

© 2012 - 2026 OOZO.nl - info@oozo.nl - Gegevens verwijderen? | Disclaimer | Privacy statement