Woning Alzira 14 Eindhoven

Alzira 14, 5629NJ Eindhoven

Ontvang updates voor Blixembosch-Oost

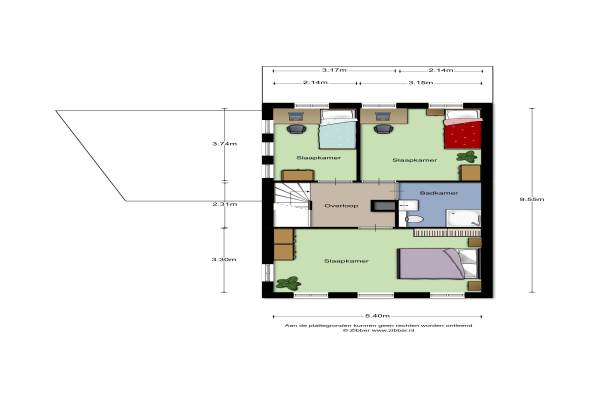
Het adres van deze woning uit 1998 is Alzira 14 te Eindhoven. Het pand heeft een oppervlakte van 130m² en een perceeloppervlakte van 310m² en heeft 5 kamers kamers waarvan 3 slaapkamers. De geschatte waarde van deze woning is € 350.000.

Bekijk alle woningen in Blixembosch-Oost

Gegevens van Eengezinswoning, geschakelde woning

Bouwjaar
1998
Geschatte waarde
€ 350.000
Oppervlakte
130 m2
Inhoud
440 m3
Aantal kamers
5 kamers
Slaapkamers
3
Badkamers
1 apart toilet
Soort bouw
Bestaande bouw
Eigendomssituatie
Volle eigendom
Tuin
Achtertuin en voortuin
Achtertuin
150 m² (12,5m diep en 12m breed)

Voorzieningen in de buurt

Binnenkijken bij Alzira 14 te Eindhoven

Meer meldingen in deze omgeving

Binnenkijken bij
Zondag 12-10-2025
Virginia Woolflaan 14, 5629MT Eindhoven

Binnenkijken bij
Zaterdag 11-10-2025
Sprookjesbosch 91, 5629JB Eindhoven

112 melding
Vrijdag 10-10-2025 om 12:40
King Oliverlaan, 5629RL Eindhoven

Binnenkijken bij
Donderdag 9-10-2025
Sartrelaan 5, 5629PL Eindhoven

Binnenkijken bij
Donderdag 9-10-2025
Stiffelio 37, 5629NL Eindhoven

Nieuw bedrijf
Oktober 2025
Victor Hugolaan 42, 5629PD Eindhoven

Nieuw bedrijf
Oktober 2025
Victor Hugolaan 2, 5629PD Eindhoven

Nieuw bedrijf
Oktober 2025
Sartrelaan 6, 5629PL Eindhoven

Direct een e-mail ontvangen bij nieuwe meldingen in deze regio?

Meld je dan GRATIS aan voor de Oozo Alert service voor Blixembosch-Oost

Instellen

Meer nieuws in Blixembosch-Oost

Weten hoe eenvoudig het is om af te vallen? Zonder pillen en smeersels en zonder je in het zweet te werken!
Kijk op eenvoudig-afvallen.nl

© 2012 - 2025 OOZO.nl - info@oozo.nl - Gegevens verwijderen? | Disclaimer | Privacy statement