Woning Turkoois 9 Eindhoven

Turkoois 9, 5629GN Eindhoven

Ontvang updates voor Blixembosch-West

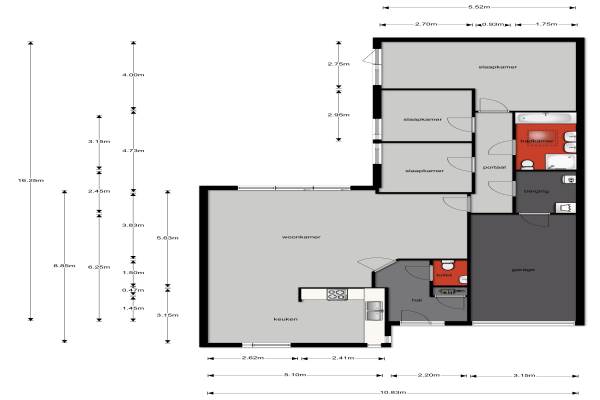
Het adres van deze woning uit 1992 is Turkoois 9 te Eindhoven. Het pand heeft een oppervlakte van 117m² en een perceeloppervlakte van 245m² en heeft 4 kamers kamers waarvan 3 slaapkamers. De geschatte waarde van deze woning is € 350.000.

Bekijk alle woningen in Blixembosch-West

Gegevens van Bungalow, geschakelde woning

Bouwjaar
1992
Geschatte waarde
€ 350.000
Oppervlakte
117 m2
Inhoud
475 m3
Aantal kamers
4 kamers
Slaapkamers
3
Badkamers
1 badkamer en 1 apart toilet
Soort bouw
Bestaande bouw
Eigendomssituatie
Volle eigendom
Ligging
Aan park, aan rustige weg, in woonwijk en vrij uitzicht
Tuin
Achtertuin en voortuin
Achtertuin
42 m² (8,4m diep en 5m breed)

Voorzieningen in de buurt

Binnenkijken bij Turkoois 9 te Eindhoven

Meer meldingen in deze omgeving

112 melding
Vrijdag 23-1-2026 om 08:35
Granaat, Eindhoven

Binnenkijken bij
Woensdag 21-1-2026
Bloedkoraal 11, 5629HD Eindhoven

112 melding
Zondag 18-1-2026 om 23:40
Topaasring, 5629GE Eindhoven

Binnenkijken bij
Vrijdag 16-1-2026
Hondsruglaan 24, 5629GA Eindhoven

Binnenkijken bij
Vrijdag 16-1-2026
Maansteen 4, 5629HN Eindhoven

Binnenkijken bij
Vrijdag 9-1-2026
Onyx 3, 5629HS Eindhoven

Binnenkijken bij
Vrijdag 9-1-2026
Barnsteen 10, 5629GX Eindhoven

Nieuw bedrijf
Januari 2026
Briljant 23, 5629HE Eindhoven

Direct een e-mail ontvangen bij nieuwe meldingen in deze regio?

Meld je dan GRATIS aan voor de Oozo Alert service voor Blixembosch-West

Instellen

Meer nieuws in Blixembosch-West

Weten hoe eenvoudig het is om af te vallen? Zonder pillen en smeersels en zonder je in het zweet te werken!
Kijk op eenvoudig-afvallen.nl

© 2012 - 2026 OOZO.nl - info@oozo.nl - Gegevens verwijderen? | Disclaimer | Privacy statement