Woning Venuslaan 395 Eindhoven

Venuslaan 395, 5632HL Eindhoven

Ontvang updates voor Eckart

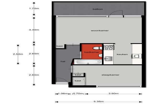
Het adres van deze woning uit 1972 is Venuslaan 395 te Eindhoven. Het pand heeft een oppervlakte van 45m² en heeft 2 kamers kamers waarvan 1 slaapkamers. De geschatte waarde van deze woning is € 127.500.

Bekijk alle woningen in Eckart

Gegevens van Galerijflat (appartement)

Bouwjaar
1972
Geschatte waarde
€ 127.500
Oppervlakte
45 m2
Inhoud
157 m3
Aantal kamers
2 kamers
Slaapkamers
1
Badkamers
1 badkamer
Soort bouw
Bestaande bouw
Eigendomssituatie
Volle eigendom
Ligging
Aan drukke weg, in woonwijk en vrij uitzicht

Voorzieningen in de buurt

Binnenkijken bij Venuslaan 395 te Eindhoven

Meer meldingen in deze omgeving

Binnenkijken bij
Woensdag 19-11-2025
Venuslaan 401, 5632HM Eindhoven

Nieuw bedrijf
November 2025
Plutostraat 136, 5632CL Eindhoven

Nieuw bedrijf
November 2025
Venuslaan 175, 5632HC Eindhoven

Nieuw bedrijf
November 2025
Weegschaalstraat 3, 5632CW Eindhoven

Nieuw bedrijf
November 2025
Weegschaalstraat 3, 5632CW Eindhoven

Nieuw bedrijf
November 2025
Kometenlaan 103, 5632DS Eindhoven

Nieuw bedrijf
November 2025
Weegschaalstraat 3, 5632CW Eindhoven

Binnenkijken bij
Dinsdag 11-11-2025
Dolphijnstraat 16, 5632CZ Eindhoven

Direct een e-mail ontvangen bij nieuwe meldingen in deze regio?

Meld je dan GRATIS aan voor de Oozo Alert service voor Eckart

Instellen

Meer nieuws in Eckart

Weten hoe eenvoudig het is om af te vallen? Zonder pillen en smeersels en zonder je in het zweet te werken!
Kijk op eenvoudig-afvallen.nl

© 2012 - 2025 OOZO.nl - info@oozo.nl - Gegevens verwijderen? | Disclaimer | Privacy statement