Woning Reuselstraat 20 Eindhoven

Reuselstraat 20, 5626DP Eindhoven

Ontvang updates voor Kerkdorp Acht

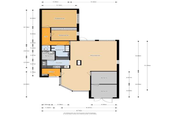
Het adres van deze woning uit 1989 is Reuselstraat 20 te Eindhoven. Het pand heeft een oppervlakte van 104m² en een perceeloppervlakte van 307m² en heeft 3 kamers kamers waarvan 2 slaapkamers. De geschatte waarde van deze woning is € 389.000.

Bekijk alle woningen in Kerkdorp Acht

Gegevens van Bungalow, geschakelde woning

Bouwjaar
1989
Geschatte waarde
€ 389.000
Oppervlakte
104 m2
Inhoud
450 m3
Aantal kamers
3 kamers
Slaapkamers
2
Badkamers
1 badkamer en 1 apart toilet
Soort bouw
Bestaande bouw
Eigendomssituatie
Volle eigendom
Ligging
In woonwijk
Tuin
Achtertuin
Achtertuin
100 m² (10m diep en 10m breed)

Voorzieningen in de buurt

Binnenkijken bij Reuselstraat 20 te Eindhoven

Meer meldingen in deze omgeving

Binnenkijken bij
Zondag 19-10-2025
Amerlaan 16, 5626BP Eindhoven

Faillissement
Donderdag 16-10-2025
Marius Ouborglaan 8, 5626GK Eindhoven

Binnenkijken bij
Donderdag 9-10-2025
Jan Gielenlaan 7, 5626HN Eindhoven

Binnenkijken bij
Donderdag 9-10-2025
Rijnstraat 218, 5626AN Eindhoven

Nieuw bedrijf
Oktober 2025
Verzetsheldenlaan 3, 5626GJ Eindhoven

Nieuw bedrijf
Oktober 2025
Rijnstraat 15, 5626AK Eindhoven

Binnenkijken bij
Maandag 22-9-2025
Rijnstraat 15, 5626AK Eindhoven

Binnenkijken bij
Maandag 22-9-2025
Roompot 25, 5626DJ Eindhoven

Direct een e-mail ontvangen bij nieuwe meldingen in deze regio?

Meld je dan GRATIS aan voor de Oozo Alert service voor Kerkdorp Acht

Instellen

Meer nieuws in Kerkdorp Acht

Weten hoe eenvoudig het is om af te vallen? Zonder pillen en smeersels en zonder je in het zweet te werken!
Kijk op eenvoudig-afvallen.nl

© 2012 - 2025 OOZO.nl - info@oozo.nl - Gegevens verwijderen? | Disclaimer | Privacy statement