Woning Firmamentlaan 12 Eindhoven

Firmamentlaan 12, 5632AB Eindhoven

Ontvang updates voor Luytelaer

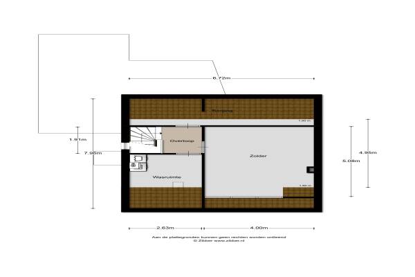
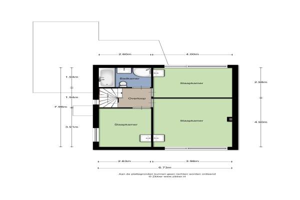
Het adres van deze woning uit 1972 is Firmamentlaan 12 te Eindhoven. Het pand heeft een oppervlakte van 150m² en een perceeloppervlakte van 279m² en heeft 6 kamers kamers waarvan 4 slaapkamers. De geschatte waarde van deze woning is € 325.000.

Bekijk alle woningen in Luytelaer

Gegevens van Eengezinswoning, hoekwoning

Bouwjaar
1972
Geschatte waarde
€ 325.000
Oppervlakte
150 m2
Inhoud
586 m3
Aantal kamers
6 kamers
Slaapkamers
4
Badkamers
1 apart toilet
Soort bouw
Bestaande bouw
Ligging
Aan rustige weg en in woonwijk
Tuin
Achtertuin en voortuin
Achtertuin
105 m² (7,5m diep en 14m breed)

Voorzieningen in de buurt

Binnenkijken bij Firmamentlaan 12 te Eindhoven

Meer meldingen in deze omgeving

Binnenkijken bij
Zaterdag 20-12-2025
Canopuslaan 32, 5632BL Eindhoven

Binnenkijken bij
Vrijdag 5-12-2025
Luytelaer 23, 5632BE Eindhoven

Binnenkijken bij
Vrijdag 21-11-2025
Craterlaan 16, 5632AG Eindhoven

Nieuw bedrijf
November 2025
Kosmoslaan 7, 5632AT Eindhoven

Nieuw bedrijf
Oktober 2025
Columbalaan 1, 5632BH Eindhoven

Nieuw bedrijf
Oktober 2025
Columbalaan 1, 5632BH Eindhoven

112 melding
Maandag 15-9-2025 om 08:56
Kosmoslaan, 5632AT Eindhoven

112 melding
Zondag 7-9-2025 om 12:34
Kosmoslaan, 5632AT Eindhoven

Direct een e-mail ontvangen bij nieuwe meldingen in deze regio?

Meld je dan GRATIS aan voor de Oozo Alert service voor Luytelaer

Instellen

Meer nieuws in Luytelaer

Weten hoe eenvoudig het is om af te vallen? Zonder pillen en smeersels en zonder je in het zweet te werken!
Kijk op eenvoudig-afvallen.nl

© 2012 - 2025 OOZO.nl - info@oozo.nl - Gegevens verwijderen? | Disclaimer | Privacy statement