Woning Rietveldlaan 3 Eindhoven

Rietveldlaan 3, 5624KK Eindhoven

Ontvang updates voor Prinsejagt

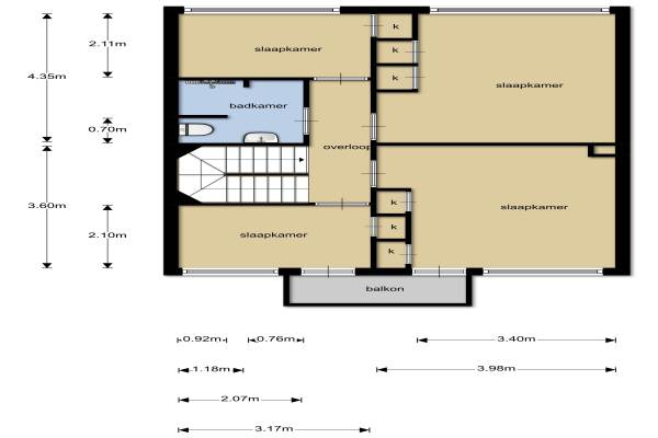
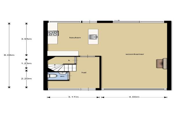
Het adres van deze woning uit 1961 is Rietveldlaan 3 te Eindhoven. Het pand heeft een oppervlakte van 154m² en een perceeloppervlakte van 188m² en heeft 7 kamers kamers waarvan 6 slaapkamers. De geschatte waarde van deze woning is € 300.000.

Bekijk alle woningen in Prinsejagt

Gegevens van Eengezinswoning, tussenwoning

Bouwjaar
1961
Geschatte waarde
€ 300.000
Oppervlakte
154 m2
Inhoud
490 m3
Aantal kamers
7 kamers
Slaapkamers
6
Badkamers
2 aparte toiletten
Soort bouw
Bestaande bouw
Eigendomssituatie
Volle eigendom
Ligging
Aan rustige weg en in woonwijk
Tuin
Achtertuin en voortuin
Achtertuin
74 m² (10m diep en 7,4m breed)

Voorzieningen in de buurt

Binnenkijken bij Rietveldlaan 3 te Eindhoven

Meer meldingen in deze omgeving

112 melding
Dinsdag 18-11-2025 om 21:53
Neumannlaan, 5624KL Eindhoven

112 melding
Dinsdag 18-11-2025 om 21:53
Neumannlaan, 5624KL Eindhoven

Nieuw bedrijf
November 2025
de Bazelstraat 3, 5624AT Eindhoven

Nieuw bedrijf
November 2025
Bakhuizen van den Brinklaan 2, 5624GN Eindhoven

Nieuw bedrijf
November 2025
Jacob van Campenweg 39, 5624CC Eindhoven

Binnenkijken bij
Vrijdag 14-11-2025
Jan Romeinstraat 44, 5624JJ Eindhoven

Binnenkijken bij
Vrijdag 14-11-2025
de Klerklaan 54, 5624BD Eindhoven

Nieuw bedrijf
November 2025
Kernkampstraat 52, 5624EG Eindhoven

Direct een e-mail ontvangen bij nieuwe meldingen in deze regio?

Meld je dan GRATIS aan voor de Oozo Alert service voor Prinsejagt

Instellen

Meer nieuws in Prinsejagt

Weten hoe eenvoudig het is om af te vallen? Zonder pillen en smeersels en zonder je in het zweet te werken!
Kijk op eenvoudig-afvallen.nl

© 2012 - 2025 OOZO.nl - info@oozo.nl - Gegevens verwijderen? | Disclaimer | Privacy statement