Woning Koolzaadpad 9 Eindhoven

Koolzaadpad 9, 5632KK Eindhoven

Ontvang updates voor Vaartbroek

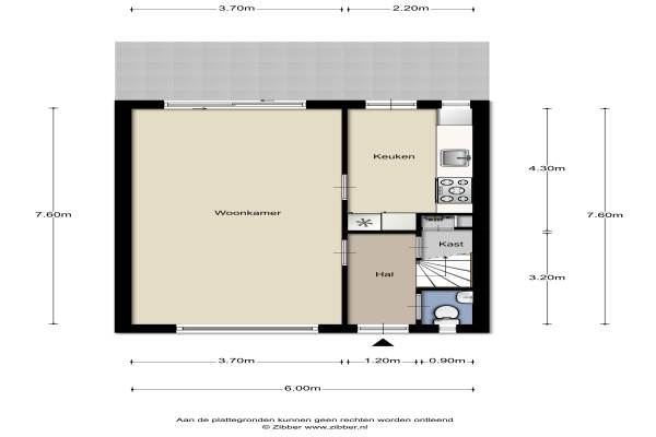
Het adres van deze woning uit 1972 is Koolzaadpad 9 te Eindhoven. Het pand heeft een oppervlakte van 119m² en een perceeloppervlakte van 144m² en heeft 5 kamers kamers waarvan 4 slaapkamers. De geschatte waarde van deze woning is € 219.000.

Bekijk alle woningen in Vaartbroek

Gegevens van Eengezinswoning, tussenwoning

Bouwjaar
1972
Geschatte waarde
€ 219.000
Oppervlakte
119 m2
Inhoud
376 m3
Aantal kamers
5 kamers
Slaapkamers
4
Badkamers
1 badkamer en 2 aparte toiletten
Soort bouw
Bestaande bouw
Eigendomssituatie
Volle eigendom
Ligging
In woonwijk en vrij uitzicht
Tuin
Voortuin en achtertuin
Achtertuin
60 m² (10m diep en 6m breed)

Voorzieningen in de buurt

Binnenkijken bij Koolzaadpad 9 te Eindhoven

Meer meldingen in deze omgeving

Nieuw bedrijf
Oktober 2025
Vaartbroek 12, 5632XD Eindhoven

Nieuw bedrijf
Oktober 2025
Druivenstraat 28, 5632SL Eindhoven

Nieuw bedrijf
Oktober 2025
de Koppele 267, 5632LK Eindhoven

Nieuw bedrijf
Oktober 2025
Druivenstraat 28, 5632SL Eindhoven

112 melding
Dinsdag 14-10-2025 om 23:00
Frambozenstraat, 5632SM Eindhoven

Binnenkijken bij
Vrijdag 10-10-2025
Suikerpeerstraat 10, 5632KA Eindhoven

Binnenkijken bij
Donderdag 9-10-2025
Wijngaardplein 15, 5632MB Eindhoven

Binnenkijken bij
Donderdag 9-10-2025
Suikerpeerstraat 2E, 5632KA Eindhoven

Direct een e-mail ontvangen bij nieuwe meldingen in deze regio?

Meld je dan GRATIS aan voor de Oozo Alert service voor Vaartbroek

Instellen

Meer nieuws in Vaartbroek

Weten hoe eenvoudig het is om af te vallen? Zonder pillen en smeersels en zonder je in het zweet te werken!
Kijk op eenvoudig-afvallen.nl

© 2012 - 2025 OOZO.nl - info@oozo.nl - Gegevens verwijderen? | Disclaimer | Privacy statement