Woning Rosa Manusstraat 23 Eindhoven

Rosa Manusstraat 23, 5612RA Eindhoven

Ontvang updates voor Limbeek-Zuid

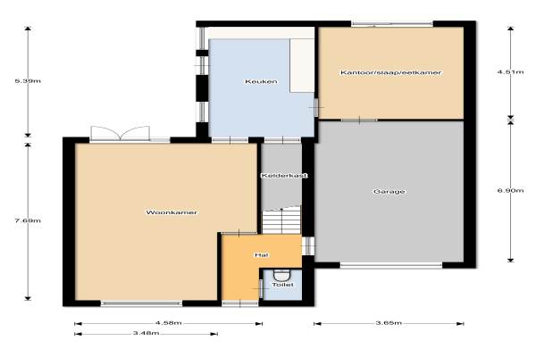
Het adres van deze woning is Rosa Manusstraat 23 te Eindhoven. Het pand heeft een oppervlakte van 165m² en een perceeloppervlakte van 222m² en heeft 9 kamers kamers waarvan 5 slaapkamers. De geschatte waarde van deze woning is € 349.000.

Bekijk alle woningen in Limbeek-Zuid

Gegevens van Herenhuis, hoekwoning

Geschatte waarde
€ 349.000
Oppervlakte
165 m2
Inhoud
600 m3
Aantal kamers
9 kamers
Slaapkamers
5
Badkamers
1 apart toilet
Soort bouw
Bestaande bouw
Tuin
Achtertuin
Achtertuin
130 m² (13m diep en 10m breed)

Voorzieningen in de buurt

Binnenkijken bij Rosa Manusstraat 23 te Eindhoven

Meer meldingen in deze omgeving

Nieuw bedrijf
Januari 2026
Steenstraat 14, 5612PE Eindhoven

112 melding
Woensdag 14-1-2026 om 22:17
Roosje Vosstraat, Eindhoven

Nieuw bedrijf
December 2025
Christina Bakker-van Bossestraat 27, 5612SC Eindhoven

Nieuw bedrijf
December 2025
Annie Romein-Verschoorstraat 35, 5612SH Eindhoven

Binnenkijken bij
Zaterdag 29-11-2025
Roosje Vosstraat 107, 5612RV Eindhoven

Nieuw bedrijf
November 2025
Rosa Manusstraat 9, 5612RA Eindhoven

Nieuw bedrijf
November 2025
Roosje Vosstraat 121, 5612RV Eindhoven

Binnenkijken bij
Vrijdag 17-10-2025
Christina Bakker-van Bossestraat 39, 5612SC Eindhoven

Direct een e-mail ontvangen bij nieuwe meldingen in deze regio?

Meld je dan GRATIS aan voor de Oozo Alert service voor Limbeek-Zuid

Instellen

Meer nieuws in Limbeek-Zuid

Weten hoe eenvoudig het is om af te vallen? Zonder pillen en smeersels en zonder je in het zweet te werken!
Kijk op eenvoudig-afvallen.nl

© 2012 - 2026 OOZO.nl - info@oozo.nl - Gegevens verwijderen? | Disclaimer | Privacy statement