Woning Roosje Vosstraat 71 Eindhoven

Roosje Vosstraat 71, 5612RT Eindhoven

Ontvang updates voor Limbeek-Zuid

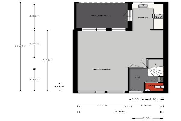
Het adres van deze woning uit 1985 is Roosje Vosstraat 71 te Eindhoven. Het pand heeft een oppervlakte van 114m² en een perceeloppervlakte van 139m² en heeft 5 kamers kamers waarvan 4 slaapkamers. De geschatte waarde van deze woning is € 275.000.

Bekijk alle woningen in Limbeek-Zuid

Gegevens van Eengezinswoning, tussenwoning

Bouwjaar
1985
Geschatte waarde
€ 275.000
Oppervlakte
114 m2
Inhoud
383 m3
Aantal kamers
5 kamers
Slaapkamers
4
Badkamers
1 badkamer en 1 apart toilet
Soort bouw
Bestaande bouw
Eigendomssituatie
Volle eigendom
Ligging
Aan rustige weg, in woonwijk en vrij uitzicht
Tuin
Achtertuin en voortuin
Achtertuin
44 m² (8m diep en 5,5m breed)

Voorzieningen in de buurt

Binnenkijken bij Roosje Vosstraat 71 te Eindhoven

Meer meldingen in deze omgeving

Nieuw bedrijf
November 2025
Rosa Manusstraat 9, 5612RA Eindhoven

Nieuw bedrijf
November 2025
Roosje Vosstraat 121, 5612RV Eindhoven

Binnenkijken bij
Vrijdag 17-10-2025
Christina Bakker-van Bossestraat 39, 5612SC Eindhoven

112 melding
Maandag 8-9-2025 om 07:42
Clara Wichmannstraat, Eindhoven

Nieuw bedrijf
September 2025
Clara Wichmannstraat 188, 5612RR Eindhoven

Nieuw bedrijf
September 2025
Clara Wichmannstraat 198, 5612RR Eindhoven

Binnenkijken bij
Vrijdag 18-7-2025
Rosa Manusstraat 9, 5612RA Eindhoven

Nieuw bedrijf
Juli 2025
Aletta Jacobsplein 111, 5612RJ Eindhoven

Direct een e-mail ontvangen bij nieuwe meldingen in deze regio?

Meld je dan GRATIS aan voor de Oozo Alert service voor Limbeek-Zuid

Instellen

Meer nieuws in Limbeek-Zuid

Weten hoe eenvoudig het is om af te vallen? Zonder pillen en smeersels en zonder je in het zweet te werken!
Kijk op eenvoudig-afvallen.nl

© 2012 - 2025 OOZO.nl - info@oozo.nl - Gegevens verwijderen? | Disclaimer | Privacy statement