Woning Raatakkers 26 Emmen

Raatakkers 26, 7826EM Emmen

Ontvang updates voor Barger-Oosterveld

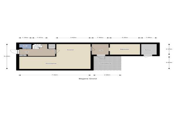
Het adres van deze woning uit 1956 is Raatakkers 26 te Emmen. Het pand heeft een oppervlakte van 85m² en een perceeloppervlakte van 277m² en heeft 5 kamers kamers waarvan 3 slaapkamers. De geschatte waarde van deze woning is € 135.000.

Bekijk alle woningen in Barger-Oosterveld

Gegevens van Eengezinswoning, 2-onder-1-kapwoning

Bouwjaar
1956
Geschatte waarde
€ 135.000
Oppervlakte
85 m2
Inhoud
250 m3
Aantal kamers
5 kamers
Slaapkamers
3
Soort bouw
Bestaande bouw
Eigendomssituatie
Volle eigendom
Ligging
Aan rustige weg, in woonwijk en beschutte ligging
Tuin
Achtertuin en voortuin
Achtertuin
130 m² (13m diep en 10m breed)

Voorzieningen in de buurt

Boodschappen0,7 km
Grote supermarkt0,6 km
Cafetaria1,2 km
Restaurant0,6 km
Huisarts2,3 km
Ziekenhuis4,8 km
Kinderdagverblijf0,5 km
BSO0,6 km
Alle voorzieningen in Barger-Oosterveld

Binnenkijken bij Raatakkers 26 te Emmen

Meer meldingen in deze omgeving

112 melding
Zaterdag 8-11-2025 om 16:39
De Bargies, Emmen

112 melding
Zaterdag 8-11-2025 om 16:39
De Bargies, Emmen

Nieuw bedrijf
Oktober 2025
Bargerholt 34, 7826DB Emmen

Binnenkijken bij
Woensdag 29-10-2025
Sint Gerardusstraat 119, 7826CC Emmen

Nieuw bedrijf
Oktober 2025
De Bargies 19, 7826HZ Emmen

Nieuw bedrijf
Oktober 2025
Splitting 82, 7826CR Emmen

Faillissement
Dinsdag 14-10-2025
Pioniersweg 6, 7826TA Emmen

Binnenlands nieuws
Dinsdag 14-10-2025
Barger-Oosterveld

Direct een e-mail ontvangen bij nieuwe meldingen in deze regio?

Meld je dan GRATIS aan voor de Oozo Alert service voor Barger-Oosterveld

Instellen

Meer nieuws in Barger-Oosterveld

Weten hoe eenvoudig het is om af te vallen? Zonder pillen en smeersels en zonder je in het zweet te werken!
Kijk op eenvoudig-afvallen.nl

© 2012 - 2025 OOZO.nl - info@oozo.nl - Gegevens verwijderen? | Disclaimer | Privacy statement