Woning Heemskerkstraat 31 Erica

Heemskerkstraat 31, 7887AA Erica

Ontvang updates voor Erica-Centrum

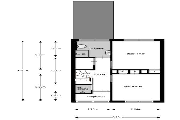
Het adres van deze woning uit 1956 is Heemskerkstraat 31 te Erica. Het pand heeft een oppervlakte van 90m² en een perceeloppervlakte van 199m² en heeft 5 kamers kamers waarvan 3 slaapkamers. De geschatte waarde van deze woning is € 112.500.

Bekijk alle woningen in Erica-Centrum

Gegevens van Eengezinswoning, tussenwoning

Bouwjaar
1956
Geschatte waarde
€ 112.500
Oppervlakte
90 m2
Inhoud
325 m3
Aantal kamers
5 kamers
Slaapkamers
3
Badkamers
1 badkamer en 1 apart toilet
Soort bouw
Bestaande bouw
Eigendomssituatie
Volle eigendom
Ligging
Aan rustige weg, in centrum en vrij uitzicht
Tuin
Achtertuin en voortuin
Achtertuin
99 m² (18m diep en 5,5m breed)

Voorzieningen in de buurt

Boodschappen0,8 km
Grote supermarkt0,8 km
Cafetaria0,7 km
Restaurant0,9 km
Huisarts0,7 km
Ziekenhuis9,7 km
Kinderdagverblijf0,7 km
BSO0,7 km
Alle voorzieningen in Erica-Centrum

Binnenkijken bij Heemskerkstraat 31 te Erica

Meer meldingen in deze omgeving

Nieuw bedrijf
Mei 2026
Pannekoekendijk 37, 7887EV Erica

112 melding
Zondag 17-5-2026 om 20:42
Zende, Erica

Binnenkijken bij
Vrijdag 8-5-2026
Heemskerkstraat 1, 7887AA Erica

Binnenkijken bij
Dinsdag 5-5-2026
Havenstraat 92, 7887BS Erica

Binnenkijken bij
Dinsdag 5-5-2026
Verlengde Vaart NZ 116A, 7887EK Erica

Binnenkijken bij
Dinsdag 5-5-2026
De Kreuzen 25, 7887CM Erica

Binnenkijken bij
Vrijdag 1-5-2026
Havenstraat 59, 7887BM Erica

Binnenkijken bij
Vrijdag 1-5-2026
Verlengde Vaart ZZ 119, 7887ER Erica

Direct een e-mail ontvangen bij nieuwe meldingen in deze regio?

Meld je dan GRATIS aan voor de Oozo Alert service voor Erica-Centrum

Instellen

Meer nieuws in Erica-Centrum

Weten hoe eenvoudig het is om af te vallen? Zonder pillen en smeersels en zonder je in het zweet te werken!
Kijk op eenvoudig-afvallen.nl

© 2012 - 2026 OOZO.nl - info@oozo.nl - Gegevens verwijderen? | Disclaimer | Privacy statement