Woning Vaart NZ 22 Nieuw-Amsterdam

Vaart NZ 22, 7833HA Nieuw-Amsterdam

Ontvang updates voor Nieuw-Amsterdam-Centrum

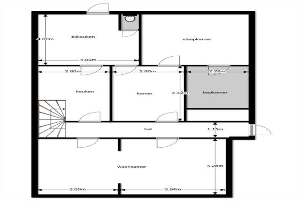
Het adres van deze woning uit 1930 is Vaart NZ 22 te Nieuw-Amsterdam. Het pand heeft een oppervlakte van 166m² en een perceeloppervlakte van 445m² en heeft 7 kamers kamers waarvan 4 slaapkamers. De geschatte waarde van deze woning is € 248.000.

Bekijk alle woningen in Nieuw-Amsterdam-Centrum

Gegevens van Eengezinswoning, vrijstaande woning

Bouwjaar
1930
Geschatte waarde
€ 248.000
Oppervlakte
166 m2
Inhoud
465 m3
Aantal kamers
7 kamers
Slaapkamers
4
Soort bouw
Bestaande bouw
Ligging
In centrum, vrij uitzicht, aan vaarwater en aan drukke weg
Tuin
Achtertuin en voortuin
Achtertuin
1 m² (1m diep en 1m breed)

Voorzieningen in de buurt

Boodschappen0,8 km
Grote supermarkt0,8 km
Cafetaria0,5 km
Restaurant0,8 km
Huisarts1,0 km
Ziekenhuis11,2 km
Kinderdagverblijf0,7 km
BSO0,7 km
Alle voorzieningen in Nieuw-Amsterdam-Centrum

Binnenkijken bij Vaart NZ 22 te Nieuw-Amsterdam

Meer meldingen in deze omgeving

Binnenkijken bij
Woensdag 21-1-2026
Wijkstraat 3, 7833EA Nieuw-Amsterdam

Faillissement
Woensdag 14-1-2026
Wijkstraat 103, 7833EC Nieuw-Amsterdam

112 melding
Woensdag 7-1-2026 om 15:52
Wijkstraat, Nieuw-Amsterdam

Binnenkijken bij
Zaterdag 3-1-2026
Ringlaan 22, 7833CD Nieuw-Amsterdam

Nieuw bedrijf
Januari 2026
Zilverzand 61, 7833LG Nieuw-Amsterdam

Nieuw bedrijf
Januari 2026
Schakelpad 22, 7833EZ Nieuw-Amsterdam

Nieuw bedrijf
Januari 2026
Zijtak WZ 35, 7833BB Nieuw-Amsterdam

Nieuw bedrijf
December 2025
Bosmanstraat 20, 7833KS Nieuw-Amsterdam

Direct een e-mail ontvangen bij nieuwe meldingen in deze regio?

Meld je dan GRATIS aan voor de Oozo Alert service voor Nieuw-Amsterdam-Centrum

Instellen

Meer nieuws in Nieuw-Amsterdam-Centrum

Weten hoe eenvoudig het is om af te vallen? Zonder pillen en smeersels en zonder je in het zweet te werken!
Kijk op eenvoudig-afvallen.nl

© 2012 - 2026 OOZO.nl - info@oozo.nl - Gegevens verwijderen? | Disclaimer | Privacy statement