Woning Seyndersloot 48 Enkhuizen

Seyndersloot 48, 1602HB Enkhuizen

Ontvang updates voor Kadijken

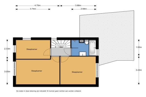
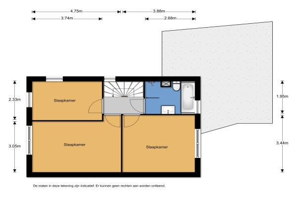
Het adres van deze woning uit 1997 is Seyndersloot 48 te Enkhuizen. Het pand heeft een oppervlakte van 131m² en een perceeloppervlakte van 258m² en heeft 7 kamers kamers waarvan 5 slaapkamers. De geschatte waarde van deze woning is € 300.000.

Bekijk alle woningen in Kadijken

Gegevens van Eengezinswoning, 2-onder-1-kapwoning

Bouwjaar
1997
Geschatte waarde
€ 300.000
Oppervlakte
131 m2
Inhoud
412 m3
Aantal kamers
7 kamers
Slaapkamers
5
Soort bouw
Bestaande bouw
Ligging
In woonwijk
Tuin
Voortuin en achtertuin
Achtertuin
69 m² (0,01m diep en 0,01m breed)

Voorzieningen in de buurt

Boodschappen1,1 km
Grote supermarkt1,1 km
Cafetaria1,5 km
Restaurant1,5 km
Huisarts1,3 km
Ziekenhuis3,0 km
Kinderdagverblijf1,3 km
BSO1,2 km
Alle voorzieningen in Kadijken

Binnenkijken bij Seyndersloot 48 te Enkhuizen

Meer meldingen in deze omgeving

112 melding
Maandag 16-3-2026 om 09:06
Om de Lande, 1602BG Enkhuizen

112 melding
Donderdag 12-3-2026 om 16:55
Onder Zeil, 1602HZ Enkhuizen

112 melding
Woensdag 11-3-2026 om 18:47
Onder Zeil, 1602HZ Enkhuizen

112 melding
Woensdag 11-3-2026 om 18:47
Onder Zeil, 1602HZ Enkhuizen

112 melding
Woensdag 11-3-2026 om 14:59
Capellesloot, 1602HT Enkhuizen

112 melding
Woensdag 11-3-2026 om 14:59
Capellesloot, 1602HT Enkhuizen

112 melding
Woensdag 11-3-2026 om 12:09
Onder Zeil, 1602HZ Enkhuizen

112 melding
Woensdag 11-3-2026 om 12:09
Onder Zeil, 1602HZ Enkhuizen

Direct een e-mail ontvangen bij nieuwe meldingen in deze regio?

Meld je dan GRATIS aan voor de Oozo Alert service voor Kadijken

Instellen

Meer nieuws in Kadijken

Weten hoe eenvoudig het is om af te vallen? Zonder pillen en smeersels en zonder je in het zweet te werken!
Kijk op eenvoudig-afvallen.nl

© 2012 - 2026 OOZO.nl - info@oozo.nl - Gegevens verwijderen? | Disclaimer | Privacy statement