Woning Tweede Bothofdwarsstraat 224 Enschede

Tweede Bothofdwarsstraat 2-24, 7511ZM Enschede

Ontvang updates voor De Bothoven

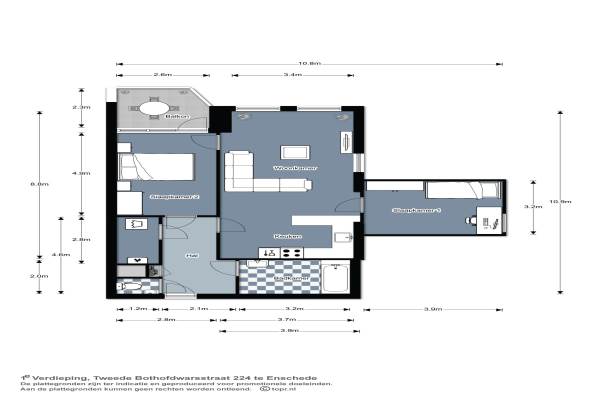
Het adres van deze woning uit 1990 is Tweede Bothofdwarsstraat 224 te Enschede. Het pand heeft een oppervlakte van 82m² en heeft 3 kamers kamers waarvan 2 slaapkamers. De geschatte waarde van deze woning is € 146.500.

Bekijk alle woningen in De Bothoven

Gegevens van Portiekflat

Bouwjaar
1990
Geschatte waarde
€ 146.500
Oppervlakte
82 m2
Inhoud
248 m3
Aantal kamers
3 kamers
Slaapkamers
2
Badkamers
2 badkamers en 1 apart toilet
Soort bouw
Bestaande bouw
Eigendomssituatie
Volle eigendom
Ligging
In centrum en in woonwijk

Voorzieningen in de buurt

Boodschappen0,3 km
Grote supermarkt0,3 km
Cafetaria0,3 km
Restaurant0,3 km
Huisarts0,9 km
Ziekenhuis1,7 km
Kinderdagverblijf0,4 km
BSO0,4 km
Alle voorzieningen in De Bothoven

Binnenkijken bij Tweede Bothofdwarsstraat 224 te Enschede

Meer meldingen in deze omgeving

112 melding
Zaterdag 17-1-2026 om 01:08
Veenstraat, Enschede

Binnenkijken bij
Vrijdag 16-1-2026
Veenstraat 238, 7511AX Enschede

Binnenkijken bij
Donderdag 15-1-2026
Boulevard 1945 36551, 7511AD Enschede

Binnenkijken bij
Dinsdag 13-1-2026
Espoortstraat 81, 7511CE Enschede

112 melding
Maandag 12-1-2026 om 08:00
Hoge Bothofstraat, Enschede

Binnenkijken bij
Zondag 11-1-2026
C.J. Snuifstraat 29, 7511ZK Enschede

Binnenkijken bij
Zaterdag 10-1-2026
Reudinkstraat 12, 7511ZH Enschede

Binnenkijken bij
Dinsdag 6-1-2026
Oldenzaalsestraat 68, 7511DT Enschede

Direct een e-mail ontvangen bij nieuwe meldingen in deze regio?

Meld je dan GRATIS aan voor de Oozo Alert service voor De Bothoven

Instellen

Meer nieuws in De Bothoven

Weten hoe eenvoudig het is om af te vallen? Zonder pillen en smeersels en zonder je in het zweet te werken!
Kijk op eenvoudig-afvallen.nl

© 2012 - 2026 OOZO.nl - info@oozo.nl - Gegevens verwijderen? | Disclaimer | Privacy statement