Woning Heutinkstraat 137 Enschede

Heutinkstraat 137, 7535AX Enschede

Ontvang updates voor Hogeland-Noord

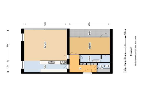
Het adres van deze woning uit 1973 is Heutinkstraat 137 te Enschede. Het pand heeft een oppervlakte van 65m² en heeft 2 kamers kamers waarvan 1 slaapkamers. De geschatte waarde van deze woning is € 119.000.

Bekijk alle woningen in Hogeland-Noord

Gegevens van Portiekflat (appartement)

Bouwjaar
1973
Geschatte waarde
€ 119.000
Oppervlakte
65 m2
Inhoud
175 m3
Aantal kamers
2 kamers
Slaapkamers
1
Badkamers
1 badkamer en 1 apart toilet
Soort bouw
Bestaande bouw
Eigendomssituatie
Volle eigendom
Ligging
Aan park en in centrum

Voorzieningen in de buurt

Boodschappen0,3 km
Grote supermarkt0,5 km
Cafetaria0,3 km
Restaurant0,4 km
Huisarts0,6 km
Ziekenhuis1,3 km
Kinderdagverblijf0,6 km
BSO0,6 km
Alle voorzieningen in Hogeland-Noord

Binnenkijken bij Heutinkstraat 137 te Enschede

Meer meldingen in deze omgeving

Nieuw bedrijf
Maart 2026
Brinkstraat 119, 7512EC Enschede

Nieuw bedrijf
Maart 2026
Heutinkstraat 23, 7535AX Enschede

Nieuw bedrijf
Maart 2026
Mooienhof 205, 7512EE Enschede

Nieuw bedrijf
Februari 2026
Perikweg 27, 7512DM Enschede

Faillissement
Woensdag 25-2-2026
Molukkenstraat 24, 7512XR Enschede

Binnenkijken bij
Donderdag 12-2-2026
Heutinkstraat 37, 7535AX Enschede

Binnenkijken bij
Donderdag 12-2-2026
Mooienhof 159, 7512EE Enschede

Binnenkijken bij
Zaterdag 7-2-2026
Brinkstraat 102, 7512EE Enschede

Direct een e-mail ontvangen bij nieuwe meldingen in deze regio?

Meld je dan GRATIS aan voor de Oozo Alert service voor Hogeland-Noord

Instellen

Meer nieuws in Hogeland-Noord

Weten hoe eenvoudig het is om af te vallen? Zonder pillen en smeersels en zonder je in het zweet te werken!
Kijk op eenvoudig-afvallen.nl

© 2012 - 2026 OOZO.nl - info@oozo.nl - Gegevens verwijderen? | Disclaimer | Privacy statement