Woning Ripperdastraat 27 Enschede

Ripperdastraat 27, 7511JP Enschede

Ontvang updates voor Horstlanden-Stadsweide

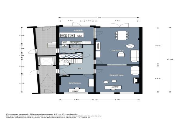
Het adres van deze woning uit 1908 is Ripperdastraat 27 te Enschede. Het pand heeft een oppervlakte van 193m² en heeft 6 kamers kamers waarvan 3 slaapkamers. De geschatte waarde van deze woning is € 459.000.

Bekijk alle woningen in Horstlanden-Stadsweide

Gegevens van Maisonnette

Bouwjaar
1908
Geschatte waarde
€ 459.000
Oppervlakte
193 m2
Inhoud
871 m3
Aantal kamers
6 kamers
Slaapkamers
3
Badkamers
1 badkamer en 2 aparte toiletten
Soort bouw
Bestaande bouw
Eigendomssituatie
Volle eigendom
Ligging
In centrum
Tuin
Achtertuin en zonneterras
Achtertuin
40 m² (5m diep en 8m breed)

Voorzieningen in de buurt

Boodschappen0,3 km
Grote supermarkt0,6 km
Cafetaria0,4 km
Restaurant0,3 km
Huisarts0,3 km
Ziekenhuis0,7 km
Kinderdagverblijf0,5 km
BSO0,3 km
Alle voorzieningen in Horstlanden-Stadsweide

Binnenkijken bij Ripperdastraat 27 te Enschede

Meer meldingen in deze omgeving

Faillissement
Maandag 5-1-2026
M.H. Tromplaan 33, 7513AB Enschede

Binnenkijken bij
Woensdag 31-12-2025
Stadsmatenstraat 102, 7513AA Enschede

Nieuw bedrijf
December 2025
Haaksbergerstraat 190, 7513EB Enschede

112 melding
Zaterdag 27-12-2025 om 19:18
Emmastraat, Enschede

Nieuw bedrijf
December 2025
Ariënsplein 1121, 7511JX Enschede

Nieuw bedrijf
December 2025
Volksparksingel 16, 7513CT Enschede

Faillissement
Dinsdag 23-12-2025
Haaksbergerstraat 116, 7513EA Enschede

Nieuw bedrijf
December 2025
Ariënsplein 1777, 7511JX Enschede

Direct een e-mail ontvangen bij nieuwe meldingen in deze regio?

Meld je dan GRATIS aan voor de Oozo Alert service voor Horstlanden-Stadsweide

Instellen

Meer nieuws in Horstlanden-Stadsweide

Weten hoe eenvoudig het is om af te vallen? Zonder pillen en smeersels en zonder je in het zweet te werken!
Kijk op eenvoudig-afvallen.nl

© 2012 - 2026 OOZO.nl - info@oozo.nl - Gegevens verwijderen? | Disclaimer | Privacy statement