Woning Keperstraat 5 Enschede

Keperstraat 5, 7513ZN Enschede

Ontvang updates voor Veldkamp-Getfert-West

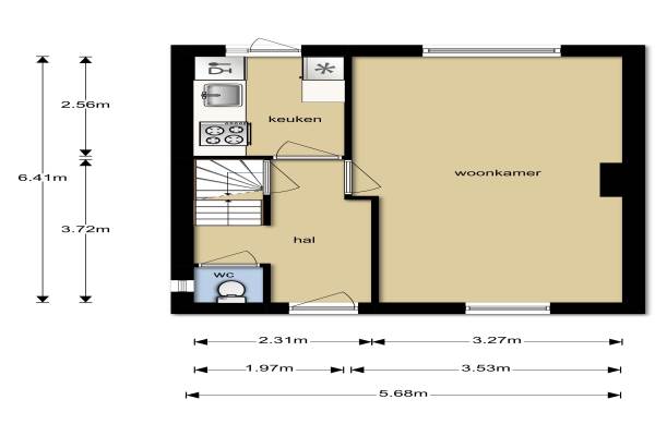
Het adres van deze woning uit 1951 is Keperstraat 5 te Enschede. Het pand heeft een oppervlakte van 70m² en een perceeloppervlakte van 145m² en heeft 4 kamers kamers waarvan 3 slaapkamers. De geschatte waarde van deze woning is € 159.000.

Bekijk alle woningen in Veldkamp-Getfert-West

Gegevens van Eengezinswoning, hoekwoning

Bouwjaar
1951
Geschatte waarde
€ 159.000
Oppervlakte
70 m2
Inhoud
290 m3
Aantal kamers
4 kamers
Slaapkamers
3
Badkamers
1 badkamer en 1 apart toilet
Soort bouw
Bestaande bouw
Eigendomssituatie
Volle eigendom
Ligging
Aan rustige weg en in woonwijk
Tuin
Achtertuin
Achtertuin
138 m² (12m diep en 11,5m breed)

Voorzieningen in de buurt

Boodschappen0,3 km
Grote supermarkt0,2 km
Cafetaria0,3 km
Restaurant0,3 km
Huisarts0,6 km
Ziekenhuis0,9 km
Kinderdagverblijf0,2 km
BSO0,5 km
Alle voorzieningen in Veldkamp-Getfert-West

Binnenkijken bij Keperstraat 5 te Enschede

Meer meldingen in deze omgeving

Nieuw bedrijf
Oktober 2025
Veldkampstraat 28, 7513ZB Enschede

Nieuw bedrijf
Oktober 2025
Veldkampstraat 28, 7513ZB Enschede

Binnenkijken bij
Woensdag 29-10-2025
Haaksbergerstraat 185, 7513EL Enschede

Nieuw bedrijf
Oktober 2025
Cromhoffsbleekweg 2, 7513EW Enschede

Nieuw bedrijf
Oktober 2025
Cromhoffsbleekweg 56, 7513EW Enschede

112 melding
Dinsdag 21-10-2025 om 10:53
Slijpsteen, Enschede

112 melding
Dinsdag 21-10-2025 om 10:53
Slijpsteen, Enschede

Nieuw bedrijf
Oktober 2025
Pathmossingel 18, 7513CH Enschede

Direct een e-mail ontvangen bij nieuwe meldingen in deze regio?

Meld je dan GRATIS aan voor de Oozo Alert service voor Veldkamp-Getfert-West

Instellen

Meer nieuws in Veldkamp-Getfert-West

Weten hoe eenvoudig het is om af te vallen? Zonder pillen en smeersels en zonder je in het zweet te werken!
Kijk op eenvoudig-afvallen.nl

© 2012 - 2025 OOZO.nl - info@oozo.nl - Gegevens verwijderen? | Disclaimer | Privacy statement