Woning Kastanjestraat 45 Enschede

Kastanjestraat 45, 7545HW Enschede

Ontvang updates voor Stevenfenne

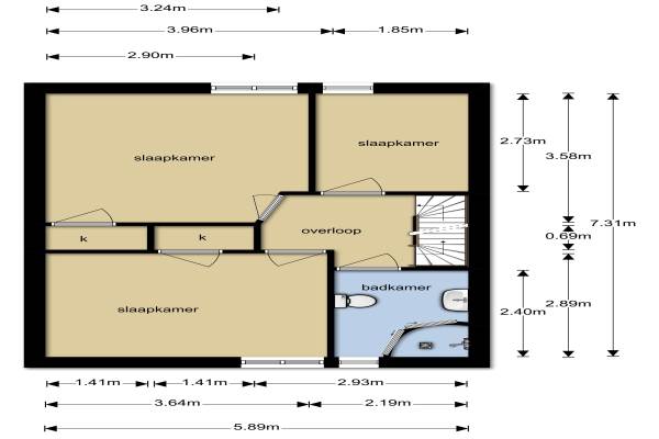
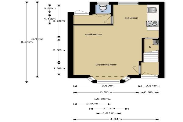
Het adres van deze woning uit 1934 is Kastanjestraat 45 te Enschede. Het pand heeft een oppervlakte van 103m² en een perceeloppervlakte van 172m² en heeft 6 kamers kamers waarvan 4 slaapkamers. De geschatte waarde van deze woning is € 165.000.

Bekijk alle woningen in Stevenfenne

Gegevens van Eengezinswoning, tussenwoning

Bouwjaar
1934
Geschatte waarde
€ 165.000
Oppervlakte
103 m2
Inhoud
350 m3
Aantal kamers
6 kamers
Slaapkamers
4
Badkamers
1 badkamer en 1 apart toilet
Soort bouw
Bestaande bouw
Eigendomssituatie
Volle eigendom
Ligging
Aan rustige weg en in woonwijk
Tuin
Achtertuin en voortuin
Achtertuin
85 m² (17m diep en 5m breed)

Voorzieningen in de buurt

Boodschappen0,3 km
Grote supermarkt0,4 km
Cafetaria0,3 km
Restaurant0,3 km
Huisarts0,5 km
Ziekenhuis1,9 km
Kinderdagverblijf0,3 km
BSO0,4 km
Alle voorzieningen in Stevenfenne

Binnenkijken bij Kastanjestraat 45 te Enschede

Meer meldingen in deze omgeving

Binnenkijken bij
Zaterdag 21-2-2026
Haaksbergerstraat 488A, 7545GB Enschede

Nieuw bedrijf
Februari 2026
Tuinbouwstraat 5, 7545EL Enschede

Binnenkijken bij
Dinsdag 17-2-2026
B.W. ter Kuilestraat 130, 7545LD Enschede

Binnenkijken bij
Maandag 16-2-2026
Dennenweg 183, 7545WD Enschede

Binnenkijken bij
Vrijdag 13-2-2026
Maaierstraat 34, 7545XL Enschede

Nieuw bedrijf
Februari 2026
Wethouder Nijhuisstraat 211, 7545NG Enschede

Binnenkijken bij
Zondag 1-2-2026
Zweringweg 36, 7545CW Enschede

112 melding
Zondag 1-2-2026 om 18:00
Wicher Nijkampstraat, Enschede

Direct een e-mail ontvangen bij nieuwe meldingen in deze regio?

Meld je dan GRATIS aan voor de Oozo Alert service voor Stevenfenne

Instellen

Meer nieuws in Stevenfenne

Weten hoe eenvoudig het is om af te vallen? Zonder pillen en smeersels en zonder je in het zweet te werken!
Kijk op eenvoudig-afvallen.nl

© 2012 - 2026 OOZO.nl - info@oozo.nl - Gegevens verwijderen? | Disclaimer | Privacy statement