Woning Lasondersingel 39 Enschede

Lasondersingel 39, 7514BN Enschede

Ontvang updates voor Roombeek-Roomveldje

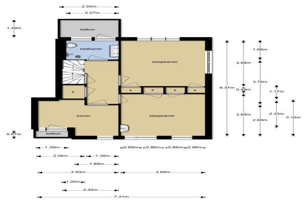
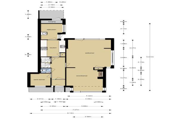
Het adres van deze woning uit 1940 is Lasondersingel 39 te Enschede. Het pand heeft een oppervlakte van 155m² en een perceeloppervlakte van 471m² en heeft 8 kamers kamers waarvan 5 slaapkamers. De geschatte waarde van deze woning is € 419.000.

Bekijk alle woningen in Roombeek-Roomveldje

Gegevens van Herenhuis, 2-onder-1-kapwoning

Bouwjaar
1940
Geschatte waarde
€ 419.000
Oppervlakte
155 m2
Inhoud
600 m3
Aantal kamers
8 kamers
Slaapkamers
5
Badkamers
1 badkamer en 1 apart toilet
Soort bouw
Bestaande bouw
Eigendomssituatie
Volle eigendom
Ligging
Aan drukke weg
Tuin
Achtertuin en voortuin
Achtertuin
330 m² (27,5m diep en 12m breed)

Voorzieningen in de buurt

Boodschappen0,5 km
Grote supermarkt0,7 km
Cafetaria0,3 km
Restaurant0,3 km
Huisarts0,5 km
Ziekenhuis2,2 km
Kinderdagverblijf0,4 km
BSO0,4 km
Alle voorzieningen in Roombeek-Roomveldje

Binnenkijken bij Lasondersingel 39 te Enschede

Meer meldingen in deze omgeving

Binnenkijken bij
Woensdag 8-4-2026
Bosuilstraat 25, 7523BJ Enschede

Onroerend goed
Donderdag 2-4-2026
Lasondersingel 37, 7514BN Enschede

Binnenkijken bij
Woensdag 1-4-2026
Roombeekstraat 20, 7523AN Enschede

Binnenkijken bij
Zondag 29-3-2026
Het Rozendaal 145, 7523XG Enschede

Binnenkijken bij
Zondag 29-3-2026
Renbaanstraat 27, 7523ZV Enschede

Nieuw bedrijf
Maart 2026
Lasondersingel 123, 7514BP Enschede

Binnenkijken bij
Maandag 23-3-2026
Roomweg 243, 7523BN Enschede

Binnenkijken bij
Maandag 23-3-2026
Jacob van Lennepstraat 12, 7523BC Enschede

Direct een e-mail ontvangen bij nieuwe meldingen in deze regio?

Meld je dan GRATIS aan voor de Oozo Alert service voor Roombeek-Roomveldje

Instellen

Meer nieuws in Roombeek-Roomveldje

Weten hoe eenvoudig het is om af te vallen? Zonder pillen en smeersels en zonder je in het zweet te werken!
Kijk op eenvoudig-afvallen.nl

© 2012 - 2026 OOZO.nl - info@oozo.nl - Gegevens verwijderen? | Disclaimer | Privacy statement