Woning Drienerweg 167 Enschede

Drienerweg 167, 7522EV Enschede

Ontvang updates voor Walhof-Roessingh

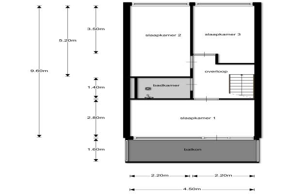
Het adres van deze woning uit 1968 is Drienerweg 167 te Enschede. Het pand heeft een oppervlakte van 86m² en heeft 4 kamers kamers waarvan 3 slaapkamers. De geschatte waarde van deze woning is € 132.500.

Bekijk alle woningen in Walhof-Roessingh

Gegevens van Maisonnette (appartement)

Bouwjaar
1968
Geschatte waarde
€ 132.500
Oppervlakte
86 m2
Inhoud
260 m3
Aantal kamers
4 kamers
Slaapkamers
3
Badkamers
1 apart toilet
Soort bouw
Bestaande bouw
Eigendomssituatie
Volle eigendom
Ligging
In woonwijk en vrij uitzicht
Tuin
Zonneterras

Voorzieningen in de buurt

Boodschappen0,5 km
Grote supermarkt0,7 km
Cafetaria0,3 km
Restaurant0,3 km
Huisarts0,4 km
Ziekenhuis2,0 km
Kinderdagverblijf0,5 km
BSO0,8 km
Alle voorzieningen in Walhof-Roessingh

Binnenkijken bij Drienerweg 167 te Enschede

Meer meldingen in deze omgeving

Onroerend goed
Dinsdag 14-10-2025
Boddenkampsingel 91- 95, 7514AP Enschede

Binnenkijken bij
Donderdag 9-10-2025
Minister Treubstraat 19, 7522BA Enschede

Faillissement
Donderdag 9-10-2025
Walhofstraat 52, 7522BM Enschede

Binnenkijken bij
Donderdag 2-10-2025
Roessinghsbleekweg 124, 7522AH Enschede

Binnenkijken bij
Woensdag 1-10-2025
Walhofplein 12, 7522RA Enschede

Binnenkijken bij
Zaterdag 27-9-2025
Drienerweg 165, 7522EV Enschede

Binnenkijken bij
Vrijdag 26-9-2025
Boddenkampstraat 96, 7522BZ Enschede

Binnenkijken bij
Donderdag 25-9-2025
Deurningerstraat 265, 7522CC Enschede

Direct een e-mail ontvangen bij nieuwe meldingen in deze regio?

Meld je dan GRATIS aan voor de Oozo Alert service voor Walhof-Roessingh

Instellen

Meer nieuws in Walhof-Roessingh

Weten hoe eenvoudig het is om af te vallen? Zonder pillen en smeersels en zonder je in het zweet te werken!
Kijk op eenvoudig-afvallen.nl

© 2012 - 2025 OOZO.nl - info@oozo.nl - Gegevens verwijderen? | Disclaimer | Privacy statement