Woning Drienerweg 106 Enschede

Drienerweg 106, 7522EZ Enschede

Ontvang updates voor Walhof-Roessingh

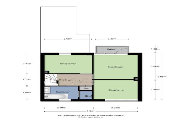
Het adres van deze woning uit 1956 is Drienerweg 106 te Enschede. Het pand heeft een oppervlakte van 101m² en een perceeloppervlakte van 194m² en heeft 4 kamers kamers waarvan 3 slaapkamers. De geschatte waarde van deze woning is € 200.000.

Bekijk alle woningen in Walhof-Roessingh

Gegevens van Eengezinswoning, tussenwoning

Bouwjaar
1956
Geschatte waarde
€ 200.000
Oppervlakte
101 m2
Inhoud
419 m3
Aantal kamers
4 kamers
Slaapkamers
3
Badkamers
1 badkamer en 1 apart toilet
Soort bouw
Bestaande bouw
Eigendomssituatie
Volle eigendom
Ligging
Aan rustige weg en in woonwijk
Tuin
Achtertuin en voortuin
Achtertuin
112 m² (16m diep en 7m breed)

Voorzieningen in de buurt

Boodschappen0,5 km
Grote supermarkt0,7 km
Cafetaria0,3 km
Restaurant0,3 km
Huisarts0,4 km
Ziekenhuis2,0 km
Kinderdagverblijf0,5 km
BSO0,8 km
Alle voorzieningen in Walhof-Roessingh

Binnenkijken bij Drienerweg 106 te Enschede

Meer meldingen in deze omgeving

Onroerend goed
Dinsdag 14-10-2025
Boddenkampsingel 91- 95, 7514AP Enschede

Binnenkijken bij
Donderdag 9-10-2025
Minister Treubstraat 19, 7522BA Enschede

Faillissement
Donderdag 9-10-2025
Walhofstraat 52, 7522BM Enschede

Binnenkijken bij
Donderdag 2-10-2025
Roessinghsbleekweg 124, 7522AH Enschede

Binnenkijken bij
Woensdag 1-10-2025
Walhofplein 12, 7522RA Enschede

Binnenkijken bij
Zaterdag 27-9-2025
Drienerweg 165, 7522EV Enschede

Binnenkijken bij
Vrijdag 26-9-2025
Boddenkampstraat 96, 7522BZ Enschede

Binnenkijken bij
Donderdag 25-9-2025
Deurningerstraat 265, 7522CC Enschede

Direct een e-mail ontvangen bij nieuwe meldingen in deze regio?

Meld je dan GRATIS aan voor de Oozo Alert service voor Walhof-Roessingh

Instellen

Meer nieuws in Walhof-Roessingh

Weten hoe eenvoudig het is om af te vallen? Zonder pillen en smeersels en zonder je in het zweet te werken!
Kijk op eenvoudig-afvallen.nl

© 2012 - 2025 OOZO.nl - info@oozo.nl - Gegevens verwijderen? | Disclaimer | Privacy statement