Woning Kemnalanden 51 Enschede

Kemnalanden 51, 7542HM Enschede

Ontvang updates voor Stroinkslanden Noord-West

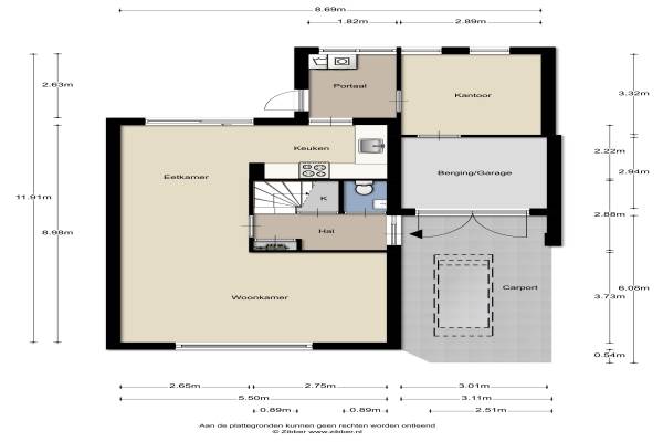
Het adres van deze woning uit 1977 is Kemnalanden 51 te Enschede. Het pand heeft een oppervlakte van 141m² en een perceeloppervlakte van 213m² en heeft 5 kamers kamers waarvan 4 slaapkamers. De geschatte waarde van deze woning is € 275.000.

Bekijk alle woningen in Stroinkslanden Noord-West

Gegevens van Eengezinswoning, 2-onder-1-kapwoning

Bouwjaar
1977
Geschatte waarde
€ 275.000
Oppervlakte
141 m2
Inhoud
507 m3
Aantal kamers
5 kamers
Slaapkamers
4
Badkamers
1 apart toilet
Soort bouw
Bestaande bouw
Eigendomssituatie
Volle eigendom
Ligging
Aan rustige weg en in woonwijk
Tuin
Achtertuin en voortuin
Achtertuin
82 m² (9,1m diep en 9m breed)

Voorzieningen in de buurt

Boodschappen0,8 km
Grote supermarkt0,8 km
Cafetaria0,8 km
Restaurant1,7 km
Huisarts0,8 km
Ziekenhuis3,1 km
Kinderdagverblijf0,4 km
BSO0,4 km
Alle voorzieningen in Stroinkslanden Noord-West

Binnenkijken bij Kemnalanden 51 te Enschede

Meer meldingen in deze omgeving

112 melding
Maandag 22-12-2025 om 00:04
Reerinklanden, 7542WR Enschede

Nieuw bedrijf
December 2025
Schabbinklanden 65, 7542DJ Enschede

Nieuw bedrijf
November 2025
Kokkelmanlanden 34, 7542JA Enschede

Faillissement
Donderdag 27-11-2025
Kolmschotlanden 57, 7542GE ENSCHEDE

Nieuw bedrijf
November 2025
Koenderinklanden 22, 7542WB Enschede

Binnenkijken bij
Woensdag 19-11-2025
Stuthoflanden 5, 7542DD Enschede

Binnenkijken bij
Woensdag 19-11-2025
Koenderinklanden 16, 7542WB Enschede

Binnenkijken bij
Zaterdag 15-11-2025
Kolmschotlanden 71, 7542GE Enschede

Direct een e-mail ontvangen bij nieuwe meldingen in deze regio?

Meld je dan GRATIS aan voor de Oozo Alert service voor Stroinkslanden Noord-West

Instellen

Meer nieuws in Stroinkslanden Noord-West

Weten hoe eenvoudig het is om af te vallen? Zonder pillen en smeersels en zonder je in het zweet te werken!
Kijk op eenvoudig-afvallen.nl

© 2012 - 2025 OOZO.nl - info@oozo.nl - Gegevens verwijderen? | Disclaimer | Privacy statement