Woning Ahuislanden 231 Enschede

Ahuislanden 231, 7542AJ Enschede

Ontvang updates voor Stroinkslanden-Zuid

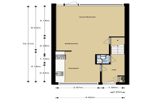
Het adres van deze woning uit 1973 is Ahuislanden 231 te Enschede. Het pand heeft een oppervlakte van 112m² en een perceeloppervlakte van 139m² en heeft 6 kamers kamers waarvan 4 slaapkamers. De geschatte waarde van deze woning is € 149.500.

Bekijk alle woningen in Stroinkslanden-Zuid

Gegevens van Eengezinswoning, tussenwoning

Bouwjaar
1973
Geschatte waarde
€ 149.500
Oppervlakte
112 m2
Inhoud
398 m3
Aantal kamers
6 kamers
Slaapkamers
4
Badkamers
1 badkamer en 1 apart toilet
Soort bouw
Bestaande bouw
Eigendomssituatie
Volle eigendom
Ligging
Aan rustige weg, in woonwijk en beschutte ligging
Tuin
Achtertuin en voortuin
Achtertuin
30 m² (5m diep en 6m breed)

Voorzieningen in de buurt

Boodschappen1,0 km
Grote supermarkt1,0 km
Cafetaria1,0 km
Restaurant1,9 km
Huisarts1,0 km
Ziekenhuis3,8 km
Kinderdagverblijf0,5 km
BSO0,5 km
Alle voorzieningen in Stroinkslanden-Zuid

Binnenkijken bij Ahuislanden 231 te Enschede

Meer meldingen in deze omgeving

112 melding
Woensdag 31-12-2025 om 13:36
Assinklanden, Enschede

112 melding
Woensdag 31-12-2025 om 13:28
Assinklanden, Enschede

Binnenkijken bij
Woensdag 31-12-2025
Hesselinklanden 98, 7542KE Enschede

112 melding
Maandag 29-12-2025 om 03:29
Bokhorstlanden, Enschede

Nieuw bedrijf
December 2025
Ahuislanden 295, 7542AK Enschede

Nieuw bedrijf
December 2025
Hanenberglanden 239, 7542EX Enschede

112 melding
Woensdag 24-12-2025 om 20:06
Bruggemanlanden, Enschede

112 melding
Woensdag 24-12-2025 om 20:02
Bruggemanlanden, Enschede

Direct een e-mail ontvangen bij nieuwe meldingen in deze regio?

Meld je dan GRATIS aan voor de Oozo Alert service voor Stroinkslanden-Zuid

Instellen

Meer nieuws in Stroinkslanden-Zuid

Weten hoe eenvoudig het is om af te vallen? Zonder pillen en smeersels en zonder je in het zweet te werken!
Kijk op eenvoudig-afvallen.nl

© 2012 - 2026 OOZO.nl - info@oozo.nl - Gegevens verwijderen? | Disclaimer | Privacy statement