Woning Assinklanden 46 Enschede

Assinklanden 46, 7542BL Enschede

Ontvang updates voor Stroinkslanden-Zuid

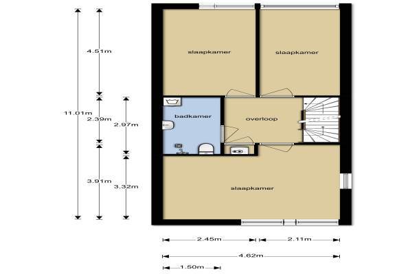
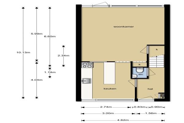
Het adres van deze woning uit 1974 is Assinklanden 46 te Enschede. Het pand heeft een oppervlakte van 115m² en een perceeloppervlakte van 144m² en heeft 5 kamers kamers waarvan 4 slaapkamers. De geschatte waarde van deze woning is € 174.000.

Bekijk alle woningen in Stroinkslanden-Zuid

Gegevens van Eengezinswoning, hoekwoning

Bouwjaar
1974
Geschatte waarde
€ 174.000
Oppervlakte
115 m2
Inhoud
411 m3
Aantal kamers
5 kamers
Slaapkamers
4
Soort bouw
Bestaande bouw
Ligging
Aan rustige weg, vrij uitzicht en in bosrijke omgeving

Voorzieningen in de buurt

Boodschappen1,0 km
Grote supermarkt1,0 km
Cafetaria1,0 km
Restaurant1,9 km
Huisarts1,0 km
Ziekenhuis3,8 km
Kinderdagverblijf0,5 km
BSO0,5 km
Alle voorzieningen in Stroinkslanden-Zuid

Binnenkijken bij Assinklanden 46 te Enschede

Meer meldingen in deze omgeving

112 melding
Maandag 3-11-2025 om 10:35
Ahuislanden, Enschede

Binnenkijken bij
Woensdag 29-10-2025
Auskamplanden 69, 7542AR Enschede

Nieuw bedrijf
Oktober 2025
Assinklanden 106, 7542BM Enschede

Nieuw bedrijf
Oktober 2025
Hanenberglanden 364, 7542EK Enschede

112 melding
Woensdag 22-10-2025 om 07:31
Hanenberglanden, Enschede

112 melding
Woensdag 22-10-2025 om 07:28
Hanenberglanden, Enschede

Binnenkijken bij
Zondag 19-10-2025
Bruggemanlanden 11, 7542CA Enschede

112 melding
Zaterdag 18-10-2025 om 15:17
Het Stroink, Enschede

Direct een e-mail ontvangen bij nieuwe meldingen in deze regio?

Meld je dan GRATIS aan voor de Oozo Alert service voor Stroinkslanden-Zuid

Instellen

Meer nieuws in Stroinkslanden-Zuid

Weten hoe eenvoudig het is om af te vallen? Zonder pillen en smeersels en zonder je in het zweet te werken!
Kijk op eenvoudig-afvallen.nl

© 2012 - 2025 OOZO.nl - info@oozo.nl - Gegevens verwijderen? | Disclaimer | Privacy statement