Woning Brookhuislanden 39 Enschede

Brookhuislanden 39, 7542BP Enschede

Ontvang updates voor Stroinkslanden-Zuid

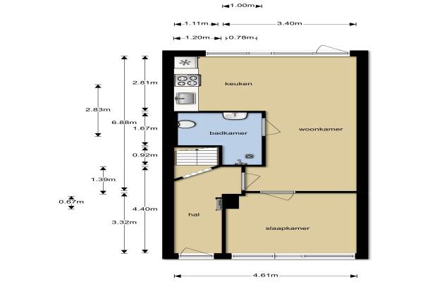
Het adres van deze woning uit 1974 is Brookhuislanden 39 te Enschede. Het pand heeft een oppervlakte van 148m² en een perceeloppervlakte van 111m² en heeft 8 kamers kamers waarvan 4 slaapkamers. De geschatte waarde van deze woning is € 147.500.

Bekijk alle woningen in Stroinkslanden-Zuid

Gegevens van Eengezinswoning, tussenwoning

Bouwjaar
1974
Geschatte waarde
€ 147.500
Oppervlakte
148 m2
Inhoud
485 m3
Aantal kamers
8 kamers
Slaapkamers
4
Badkamers
2 badkamers
Soort bouw
Bestaande bouw
Eigendomssituatie
Volle eigendom
Ligging
Aan rustige weg en in woonwijk
Tuin
Achtertuin
Achtertuin
65 m² (13m diep en 5m breed)

Voorzieningen in de buurt

Boodschappen1,0 km
Grote supermarkt1,0 km
Cafetaria1,0 km
Restaurant1,9 km
Huisarts1,0 km
Ziekenhuis3,8 km
Kinderdagverblijf0,5 km
BSO0,5 km
Alle voorzieningen in Stroinkslanden-Zuid

Binnenkijken bij Brookhuislanden 39 te Enschede

Meer meldingen in deze omgeving

Binnenkijken bij
Zaterdag 17-1-2026
Holtwiklanden 159, 7542KW Enschede

Binnenkijken bij
Vrijdag 16-1-2026
Assinklanden 71, 7542BB Enschede

Binnenkijken bij
Zaterdag 10-1-2026
Hanenberglanden 206, 7542EE Enschede

112 melding
Maandag 5-1-2026 om 04:22
Holtwiklanden, Enschede

Binnenkijken bij
Zaterdag 3-1-2026
Holtwiklanden 75, 7542JX Enschede

112 melding
Woensdag 31-12-2025 om 13:36
Assinklanden, Enschede

112 melding
Woensdag 31-12-2025 om 13:28
Assinklanden, Enschede

Binnenkijken bij
Woensdag 31-12-2025
Hesselinklanden 98, 7542KE Enschede

Direct een e-mail ontvangen bij nieuwe meldingen in deze regio?

Meld je dan GRATIS aan voor de Oozo Alert service voor Stroinkslanden-Zuid

Instellen

Meer nieuws in Stroinkslanden-Zuid

Weten hoe eenvoudig het is om af te vallen? Zonder pillen en smeersels en zonder je in het zweet te werken!
Kijk op eenvoudig-afvallen.nl

© 2012 - 2026 OOZO.nl - info@oozo.nl - Gegevens verwijderen? | Disclaimer | Privacy statement