Woning Geessinkweg 311 Enschede

Geessinkweg 311, 7544TZ Enschede

Ontvang updates voor Wesselerbrink Zuid-West

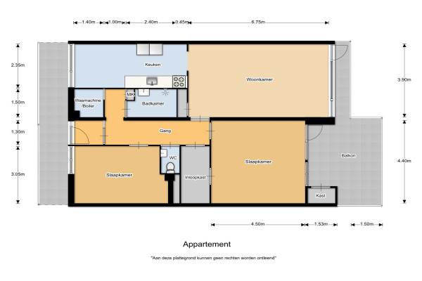
Het adres van deze woning uit 1972 is Geessinkweg 311 te Enschede. Het pand heeft een oppervlakte van 95m² en heeft 3 kamers kamers waarvan 2 slaapkamers. De geschatte waarde van deze woning is € 134.000.

Bekijk alle woningen in Wesselerbrink Zuid-West

Gegevens van Galerijflat (appartement)

Bouwjaar
1972
Geschatte waarde
€ 134.000
Oppervlakte
95 m2
Inhoud
250 m3
Aantal kamers
3 kamers
Slaapkamers
2
Badkamers
1 badkamer en 1 apart toilet
Soort bouw
Bestaande bouw
Eigendomssituatie
Volle eigendom
Ligging
Aan rustige weg, in woonwijk, vrij uitzicht en in bosrijke omgeving

Voorzieningen in de buurt

Boodschappen0,4 km
Grote supermarkt0,4 km
Cafetaria0,8 km
Restaurant1,1 km
Huisarts0,8 km
Ziekenhuis4,0 km
Kinderdagverblijf0,7 km
BSO0,7 km
Alle voorzieningen in Wesselerbrink Zuid-West

Binnenkijken bij Geessinkweg 311 te Enschede

Meer meldingen in deze omgeving

Binnenkijken bij
Woensdag 24-12-2025
Herikebrink 59, 7544ES Enschede

Binnenkijken bij
Woensdag 24-12-2025
Stokkumbrink 88, 7544ED Enschede

112 melding
Dinsdag 23-12-2025 om 21:17
Geessinkbraakweg, 7546PK Enschede

112 melding
Dinsdag 23-12-2025 om 21:15
Geessinkbraakweg, 7546PK Enschede

Binnenkijken bij
Dinsdag 23-12-2025
Stokkumbrink 35, 7544EA Enschede

Binnenkijken bij
Zaterdag 20-12-2025
Geessinkweg 59, 7544TV Enschede

Nieuw bedrijf
December 2025
Wienebrink 200, 7544VW Enschede

Faillissement
Donderdag 11-12-2025
Stokkumbrink 89, 7544EB Enschede

Direct een e-mail ontvangen bij nieuwe meldingen in deze regio?

Meld je dan GRATIS aan voor de Oozo Alert service voor Wesselerbrink Zuid-West

Instellen

Meer nieuws in Wesselerbrink Zuid-West

Weten hoe eenvoudig het is om af te vallen? Zonder pillen en smeersels en zonder je in het zweet te werken!
Kijk op eenvoudig-afvallen.nl

© 2012 - 2025 OOZO.nl - info@oozo.nl - Gegevens verwijderen? | Disclaimer | Privacy statement