Woning Esmarkelaan 419 Enschede

Esmarkelaan 419, 7534JZ Enschede

Ontvang updates voor Eekmaat West

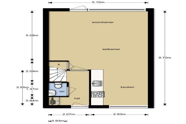
Het adres van deze woning uit 1998 is Esmarkelaan 419 te Enschede. Het pand heeft een oppervlakte van 117m² en een perceeloppervlakte van 124m² en heeft 6 kamers kamers waarvan 4 slaapkamers. De geschatte waarde van deze woning is € 199.000.

Bekijk alle woningen in Eekmaat West

Gegevens van Eengezinswoning, tussenwoning

Bouwjaar
1998
Geschatte waarde
€ 199.000
Oppervlakte
117 m2
Inhoud
385 m3
Aantal kamers
6 kamers
Slaapkamers
4
Badkamers
1 badkamer en 2 aparte toiletten
Soort bouw
Bestaande bouw
Eigendomssituatie
Volle eigendom
Ligging
Aan rustige weg en in woonwijk
Tuin
Achtertuin en voortuin
Achtertuin
46 m² (9m diep en 5,1m breed)

Voorzieningen in de buurt

Boodschappen0,9 km
Grote supermarkt0,9 km
Cafetaria0,7 km
Restaurant0,6 km
Huisarts2,1 km
Ziekenhuis4,5 km
Kinderdagverblijf0,7 km
BSO0,8 km
Alle voorzieningen in Eekmaat West

Binnenkijken bij Esmarkelaan 419 te Enschede

Meer meldingen in deze omgeving

Nieuw bedrijf
December 2025
Waterlelielaan 15, 7534KK Enschede

Nieuw bedrijf
December 2025
Gronausestraat 710, 7534AM Enschede

Binnenkijken bij
Woensdag 10-12-2025
Mannagraslaan 4, 7534JD Enschede

Nieuw bedrijf
December 2025
Waterdriebladlaan 47, 7534KA Enschede

Nieuw bedrijf
December 2025
Waterdriebladlaan 47, 7534KA Enschede

Nieuw bedrijf
December 2025
Esmarkelaan 2, 7534JH Enschede

Nieuw bedrijf
November 2025
Vederkruidlaan 61, 7534JL Enschede

Nieuw bedrijf
November 2025
Dolphiaweg 12, 7534KT Enschede

Direct een e-mail ontvangen bij nieuwe meldingen in deze regio?

Meld je dan GRATIS aan voor de Oozo Alert service voor Eekmaat West

Instellen

Meer nieuws in Eekmaat West

Weten hoe eenvoudig het is om af te vallen? Zonder pillen en smeersels en zonder je in het zweet te werken!
Kijk op eenvoudig-afvallen.nl

© 2012 - 2025 OOZO.nl - info@oozo.nl - Gegevens verwijderen? | Disclaimer | Privacy statement