Woning Admiraal Byrdstraat 17 Enschede

Admiraal Byrdstraat 17, 7534ZP Enschede

Ontvang updates voor Eekmaat

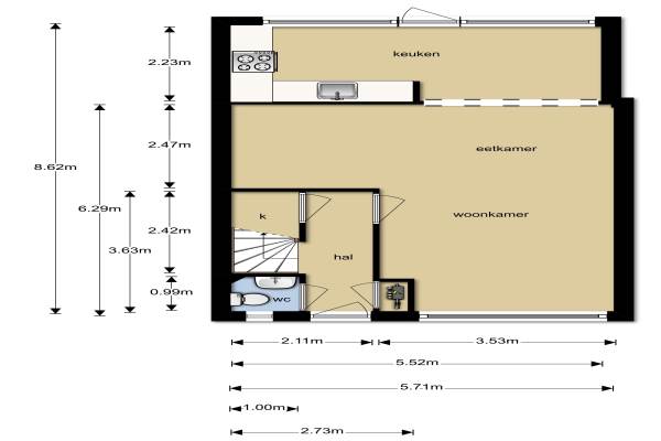
Het adres van deze woning is Admiraal Byrdstraat 17 te Enschede. Het pand heeft een oppervlakte van 82m² en een perceeloppervlakte van 137m² en heeft 4 kamers kamers waarvan 3 slaapkamers. De geschatte waarde van deze woning is € 144.000.

Bekijk alle woningen in Eekmaat

Gegevens van Eengezinswoning, tussenwoning

Geschatte waarde
€ 144.000
Oppervlakte
82 m2
Inhoud
329 m3
Aantal kamers
4 kamers
Slaapkamers
3
Soort bouw
Bestaande bouw
Ligging
Aan rustige weg en in woonwijk
Tuin
Voortuin

Voorzieningen in de buurt

Boodschappen0,4 km
Grote supermarkt0,4 km
Cafetaria0,5 km
Restaurant0,4 km
Huisarts0,5 km
Ziekenhuis5,9 km
Kinderdagverblijf0,9 km
BSO0,9 km
Alle voorzieningen in Eekmaat

Binnenkijken bij Admiraal Byrdstraat 17 te Enschede

Meer meldingen in deze omgeving

Binnenkijken bij
Woensdag 19-11-2025
Schipholtstraat 130, 7534DB Enschede

112 melding
Vrijdag 14-11-2025 om 20:39
Fridtjof Nansenstraat, Enschede

Nieuw bedrijf
November 2025
James Rossstraat 43, 7534ZZ Enschede

Onroerend goed
Dinsdag 11-11-2025
Gronausestraat 1086, 7534AP Enschede

Binnenkijken bij
Dinsdag 11-11-2025
Schoolstraat 50, 7534CC Enschede

112 melding
Maandag 10-11-2025 om 00:20
Abel Tasmanstraat, Enschede

112 melding
Maandag 10-11-2025 om 00:20
Abel Tasmanstraat, Enschede

Binnenkijken bij
Zondag 19-10-2025
Abel Tasmanstraat 67, 7534BT Enschede

Direct een e-mail ontvangen bij nieuwe meldingen in deze regio?

Meld je dan GRATIS aan voor de Oozo Alert service voor Eekmaat

Instellen

Meer nieuws in Eekmaat

Weten hoe eenvoudig het is om af te vallen? Zonder pillen en smeersels en zonder je in het zweet te werken!
Kijk op eenvoudig-afvallen.nl

© 2012 - 2025 OOZO.nl - info@oozo.nl - Gegevens verwijderen? | Disclaimer | Privacy statement