Woning Citroenvlinder 26 Enschede

Citroenvlinder 26, 7534LA Enschede

Ontvang updates voor Eilermarke

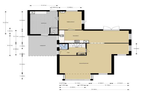
Het adres van deze woning uit 2004 is Citroenvlinder 26 te Enschede. Het pand heeft een oppervlakte van 208m² en een perceeloppervlakte van 390m² en heeft 7 kamers kamers waarvan 3 slaapkamers. De geschatte waarde van deze woning is € 459.000.

Bekijk alle woningen in Eilermarke

Gegevens van Eengezinswoning, vrijstaande woning

Bouwjaar
2004
Geschatte waarde
€ 459.000
Oppervlakte
208 m2
Inhoud
804 m3
Aantal kamers
7 kamers
Slaapkamers
3
Badkamers
1 badkamer en 1 apart toilet
Soort bouw
Bestaande bouw
Eigendomssituatie
Volle eigendom
Ligging
Aan water, aan rustige weg en in woonwijk
Tuin
Achtertuin en voortuin
Achtertuin
120 m² (8m diep en 15m breed)

Voorzieningen in de buurt

Boodschappen0,8 km
Grote supermarkt1,0 km
Cafetaria1,1 km
Restaurant0,8 km
Huisarts1,1 km
Ziekenhuis5,6 km
Kinderdagverblijf1,0 km
BSO1,0 km
Alle voorzieningen in Eilermarke

Binnenkijken bij Citroenvlinder 26 te Enschede

Meer meldingen in deze omgeving

Binnenkijken bij
Donderdag 4-12-2025
Parelmoervlinder 92, 7534MA Enschede

Binnenkijken bij
Vrijdag 21-11-2025
Citroenvlinder 36, 7534LA Enschede

Nieuw bedrijf
November 2025
Satijnvlinder 20, 7534ME Enschede

Binnenkijken bij
Dinsdag 11-11-2025
Vogelvlinder 6, 7534MC Enschede

Nieuw bedrijf
November 2025
Citroenvlinder 46, 7534LA Enschede

Binnenkijken bij
Woensdag 29-10-2025
Avondroodvlinder 14A, 7534LJ Enschede

Binnenkijken bij
Zondag 19-10-2025
Kopervlinder 4, 7534MP Enschede

Binnenkijken bij
Zondag 19-10-2025
Citroenvlinder 118, 7534LB Enschede

Direct een e-mail ontvangen bij nieuwe meldingen in deze regio?

Meld je dan GRATIS aan voor de Oozo Alert service voor Eilermarke

Instellen

Meer nieuws in Eilermarke

Weten hoe eenvoudig het is om af te vallen? Zonder pillen en smeersels en zonder je in het zweet te werken!
Kijk op eenvoudig-afvallen.nl

© 2012 - 2025 OOZO.nl - info@oozo.nl - Gegevens verwijderen? | Disclaimer | Privacy statement