Woning Velveweg 177 Enschede

Velveweg 177, 7533XH Enschede

Ontvang updates voor Velve-Lindenhof

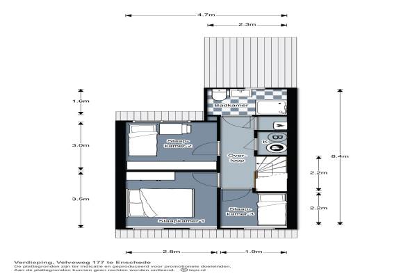
Het adres van deze woning uit 1926 is Velveweg 177 te Enschede. Het pand heeft een oppervlakte van 78m² en een perceeloppervlakte van 1607m² en heeft 4 kamers kamers waarvan 3 slaapkamers. De geschatte waarde van deze woning is € 147.500.

Bekijk alle woningen in Velve-Lindenhof

Gegevens van Eengezinswoning, eindwoning

Bouwjaar
1926
Geschatte waarde
€ 147.500
Oppervlakte
78 m2
Inhoud
285 m3
Aantal kamers
4 kamers
Slaapkamers
3
Badkamers
1 badkamer en 1 apart toilet
Soort bouw
Bestaande bouw
Eigendomssituatie
Volle eigendom
Ligging
In woonwijk
Tuin
Achtertuin en voortuin
Achtertuin
40 m² (8m diep en 5m breed)

Voorzieningen in de buurt

Boodschappen0,5 km
Grote supermarkt0,5 km
Cafetaria0,4 km
Restaurant0,3 km
Huisarts1,5 km
Ziekenhuis2,7 km
Kinderdagverblijf0,4 km
BSO0,5 km
Alle voorzieningen in Velve-Lindenhof

Binnenkijken bij Velveweg 177 te Enschede

Meer meldingen in deze omgeving

Binnenkijken bij
Woensdag 24-12-2025
Oliemolensingel 135, 7511BB Enschede

Nieuw bedrijf
December 2025
Lage Bothofstraat 19135, 7533AS Enschede

Nieuw bedrijf
December 2025
Lage Bothofstraat 19135, 7533AS Enschede

Nieuw bedrijf
December 2025
Van Leeuwenhoekstraat 215, 7533WE Enschede

Binnenkijken bij
Zaterdag 13-12-2025
Van Musschenbroekstraat 562, 7533XP Enschede

Binnenkijken bij
Zaterdag 13-12-2025
Galvanistraat 19, 7533AX Enschede

Binnenkijken bij
Vrijdag 12-12-2025
Madame Curieplein 20, 7533AX Enschede

Nieuw bedrijf
December 2025
Lage Bothofstraat 246, 7533AT Enschede

Direct een e-mail ontvangen bij nieuwe meldingen in deze regio?

Meld je dan GRATIS aan voor de Oozo Alert service voor Velve-Lindenhof

Instellen

Meer nieuws in Velve-Lindenhof

Weten hoe eenvoudig het is om af te vallen? Zonder pillen en smeersels en zonder je in het zweet te werken!
Kijk op eenvoudig-afvallen.nl

© 2012 - 2025 OOZO.nl - info@oozo.nl - Gegevens verwijderen? | Disclaimer | Privacy statement