Woning Minister Loudonlaan 11 Enschede

Minister Loudonlaan 11, 7521BA Enschede

Ontvang updates voor Tubantia-Toekomst

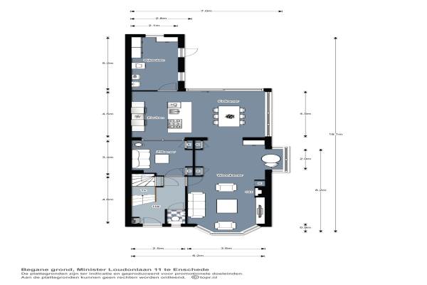
Het adres van deze woning uit 1926 is Minister Loudonlaan 11 te Enschede. Het pand heeft een oppervlakte van 173m² en een perceeloppervlakte van 283m² en heeft 7 kamers kamers waarvan 4 slaapkamers. De geschatte waarde van deze woning is € 375.000.

Bekijk alle woningen in Tubantia-Toekomst

Gegevens van Herenhuis, 2-onder-1-kapwoning

Bouwjaar
1926
Geschatte waarde
€ 375.000
Oppervlakte
173 m2
Inhoud
627 m3
Aantal kamers
7 kamers
Slaapkamers
4
Badkamers
1 badkamer en 1 apart toilet
Soort bouw
Bestaande bouw
Eigendomssituatie
Volle eigendom
Ligging
Aan rustige weg en in woonwijk
Tuin
Achtertuin, voortuin en zonneterras
Achtertuin
111 m² (13m diep en 8,5m breed)

Voorzieningen in de buurt

Boodschappen0,4 km
Grote supermarkt0,6 km
Cafetaria0,4 km
Restaurant0,3 km
Huisarts0,7 km
Ziekenhuis2,6 km
Kinderdagverblijf0,4 km
BSO0,6 km
Alle voorzieningen in Tubantia-Toekomst

Binnenkijken bij Minister Loudonlaan 11 te Enschede

Meer meldingen in deze omgeving

Binnenkijken bij
Zondag 10-5-2026
Schietbaanweg 10, 7521DB Enschede

Binnenkijken bij
Vrijdag 8-5-2026
Johan Wijnoltsstraat 158, 7521SV Enschede

Binnenkijken bij
Vrijdag 8-5-2026
Rigtersbleekstraat 61, 7521GJ Enschede

Binnenkijken bij
Dinsdag 5-5-2026
Johan Wijnoltsstraat 148, 7521SV Enschede

Binnenkijken bij
Dinsdag 5-5-2026
Abraham Strickstraat 71, 7521ET Enschede

Binnenkijken bij
Dinsdag 5-5-2026
Everhardt van der Marckstraat 16, 7521VP Enschede

Binnenkijken bij
Dinsdag 5-5-2026
Albert Meijeringstraat 72, 7521TM Enschede

Nieuw bedrijf
Mei 2026
Everhardt van der Marckstraat 30, 7521VP Enschede

Direct een e-mail ontvangen bij nieuwe meldingen in deze regio?

Meld je dan GRATIS aan voor de Oozo Alert service voor Tubantia-Toekomst

Instellen

Meer nieuws in Tubantia-Toekomst

Weten hoe eenvoudig het is om af te vallen? Zonder pillen en smeersels en zonder je in het zweet te werken!
Kijk op eenvoudig-afvallen.nl

© 2012 - 2026 OOZO.nl - info@oozo.nl - Gegevens verwijderen? | Disclaimer | Privacy statement