Woning Zwaluwstraat 30 Vaassen

Zwaluwstraat 30, 8172EZ Vaassen

Ontvang updates voor Vaassen-West

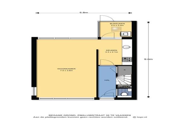
Het adres van deze woning uit 1970 is Zwaluwstraat 30 te Vaassen. Het pand heeft een oppervlakte van 111m² en een perceeloppervlakte van 228m² en heeft 5 kamers kamers waarvan 4 slaapkamers. De geschatte waarde van deze woning is € 217.500.

Bekijk alle woningen in Vaassen-West

Gegevens van Eengezinswoning, hoekwoning

Bouwjaar
1970
Geschatte waarde
€ 217.500
Oppervlakte
111 m2
Inhoud
335 m3
Aantal kamers
5 kamers
Slaapkamers
4
Badkamers
1 badkamer
Soort bouw
Bestaande bouw
Eigendomssituatie
Volle eigendom
Ligging
Aan rustige weg en in woonwijk
Tuin
Achtertuin, voortuin en zijtuin
Achtertuin
60 m² (7m diep en 8,5m breed)

Voorzieningen in de buurt

Boodschappen0,7 km
Grote supermarkt0,6 km
Cafetaria0,6 km
Restaurant0,5 km
Huisarts0,5 km
Ziekenhuis8,1 km
Kinderdagverblijf0,8 km
BSO0,7 km
Alle voorzieningen in Vaassen-West

Binnenkijken bij Zwaluwstraat 30 te Vaassen

Meer meldingen in deze omgeving

Nieuw bedrijf
Mei 2026
Suikerbrink 57, 8172XX Vaassen

Binnenkijken bij
Vrijdag 8-5-2026
Smutsstraat 16, 8172CD Vaassen

Binnenkijken bij
Dinsdag 5-5-2026
Hindenhoek 20, 8172AC Vaassen

Binnenkijken bij
Dinsdag 5-5-2026
Woestijnweg 118, 8172CV Vaassen

Binnenkijken bij
Dinsdag 5-5-2026
Elzenoord 30, 8172AZ Vaassen

112 melding
Maandag 4-5-2026 om 17:53
Krugerstraat, Vaassen

112 melding
Dinsdag 28-4-2026 om 14:43
Sparrenoord, Vaassen

112 melding
Zondag 26-4-2026 om 18:35
Sperwerstraat, 8172GG Vaassen

Direct een e-mail ontvangen bij nieuwe meldingen in deze regio?

Meld je dan GRATIS aan voor de Oozo Alert service voor Vaassen-West

Instellen

Meer nieuws in Vaassen-West

Weten hoe eenvoudig het is om af te vallen? Zonder pillen en smeersels en zonder je in het zweet te werken!
Kijk op eenvoudig-afvallen.nl

© 2012 - 2026 OOZO.nl - info@oozo.nl - Gegevens verwijderen? | Disclaimer | Privacy statement