Woning Waldhoornlaan 15 Etten-Leur

Waldhoornlaan 15, 4876BA Etten-Leur

Ontvang updates voor Grauwe Polder 1

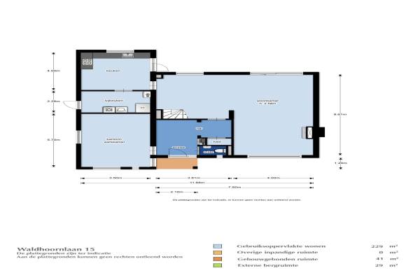
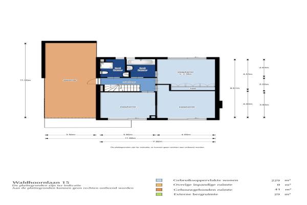
Het adres van deze woning uit 1975 is Waldhoornlaan 15 te Etten-Leur. Het pand heeft een oppervlakte van 229m² en een perceeloppervlakte van 558m² en heeft 7 kamers kamers waarvan 6 slaapkamers. De geschatte waarde van deze woning is € 525.000.

Bekijk alle woningen in Grauwe Polder 1

Gegevens van Eengezinswoning, vrijstaande woning

Bouwjaar
1975
Geschatte waarde
€ 525.000
Oppervlakte
229 m2
Inhoud
734 m3
Aantal kamers
7 kamers
Slaapkamers
6
Badkamers
2 badkamers en 1 apart toilet
Soort bouw
Bestaande bouw
Eigendomssituatie
Volle eigendom
Ligging
In woonwijk
Tuin
Tuin rondom

Voorzieningen in de buurt

Boodschappen0,5 km
Grote supermarkt0,5 km
Cafetaria0,5 km
Restaurant0,6 km
Huisarts1,0 km
Ziekenhuis1,8 km
Kinderdagverblijf0,4 km
BSO0,4 km
Alle voorzieningen in Grauwe Polder 1

Binnenkijken bij Waldhoornlaan 15 te Etten-Leur

Meer meldingen in deze omgeving

Nieuw bedrijf
Februari 2026
Cimbaalhof 175, 4876BN Etten-Leur

Binnenkijken bij
Zondag 22-2-2026
Bisschopsmolenstraat 84, 4876AP Etten-Leur

Onroerend goed
Zaterdag 7-2-2026
Bisschopsmolenstraat 28, 4876AN Etten-Leur

Nieuw bedrijf
Januari 2026
Roosendaalseweg 17A, 4876AA Etten-Leur

Nieuw bedrijf
December 2025
Cimbaalhof 24, 4876BP Etten-Leur

Nieuw bedrijf
December 2025
Grauwe Poldervoetpad 3, 4876AW Etten-Leur

Nieuw bedrijf
December 2025
Cimbaalhof 91, 4876BL Etten-Leur

Binnenkijken bij
Vrijdag 5-12-2025
Waldhoornlaan 29, 4876BA Etten-Leur

Direct een e-mail ontvangen bij nieuwe meldingen in deze regio?

Meld je dan GRATIS aan voor de Oozo Alert service voor Grauwe Polder 1

Instellen

Meer nieuws in Grauwe Polder 1

Weten hoe eenvoudig het is om af te vallen? Zonder pillen en smeersels en zonder je in het zweet te werken!
Kijk op eenvoudig-afvallen.nl

© 2012 - 2026 OOZO.nl - info@oozo.nl - Gegevens verwijderen? | Disclaimer | Privacy statement