Woning Stationsweg 3 Blije

Stationsweg 3, 9171LR Blije

Ontvang updates voor Blija

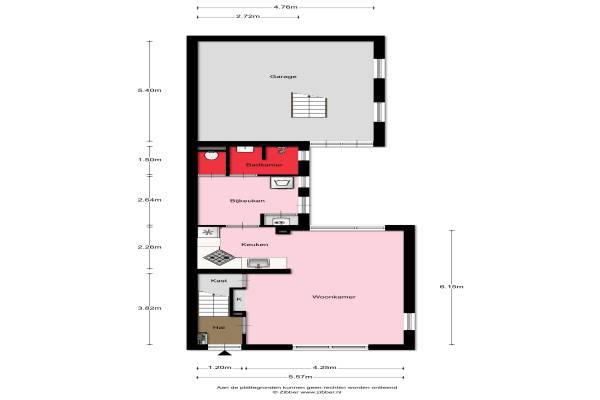
Het adres van deze woning uit 1956 is Stationsweg 3 te Blije. Het pand heeft een oppervlakte van 80m² en een perceeloppervlakte van 244m² en heeft 5 kamers kamers waarvan 4 slaapkamers. De geschatte waarde van deze woning is € 125.000.

Bekijk alle woningen in Blija

Gegevens van Eengezinswoning, 2-onder-1-kapwoning

Bouwjaar
1956
Geschatte waarde
€ 125.000
Oppervlakte
80 m2
Inhoud
415 m3
Aantal kamers
5 kamers
Slaapkamers
4
Badkamers
1 badkamer en 1 apart toilet
Soort bouw
Bestaande bouw
Eigendomssituatie
Volle eigendom
Ligging
Aan rustige weg en beschutte ligging
Tuin
Achtertuin en voortuin
Achtertuin
50 m² (11m diep en 4,5m breed)

Voorzieningen in de buurt

Binnenkijken bij Stationsweg 3 te Blije

Meer meldingen in deze omgeving

Binnenkijken bij
Dinsdag 5-5-2026
Voorstraat 31, 9171LT Blije

Binnenkijken bij
Zondag 15-3-2026
Krimpenwei 24, 9171LE Blije

Binnenkijken bij
Zondag 15-3-2026
Voorstraat 2, 9171LV Blije

112 melding
Dinsdag 27-1-2026 om 03:06
Haven, 9171LX Blije

Binnenkijken bij
Zondag 25-1-2026
Voorstraat 25, 9171LT Blije

Binnenkijken bij
Woensdag 7-1-2026
Lytsebuorren 9, 9171LW Blije

112 melding
Dinsdag 30-12-2025 om 21:47
Hoofdstraat, Blije

Onroerend goed
Zaterdag 15-11-2025
Unemastraat 13, 9171LC Blije

Direct een e-mail ontvangen bij nieuwe meldingen in deze regio?

Meld je dan GRATIS aan voor de Oozo Alert service voor Blija

Instellen

Meer nieuws in Blija

Weten hoe eenvoudig het is om af te vallen? Zonder pillen en smeersels en zonder je in het zweet te werken!
Kijk op eenvoudig-afvallen.nl

© 2012 - 2026 OOZO.nl - info@oozo.nl - Gegevens verwijderen? | Disclaimer | Privacy statement