Woning Westernijtsjerk 6 Marrum

Westernijtsjerk 6, 9073TS Marrum

Ontvang updates voor Verspreide huizen Marrum-Westernijkerk

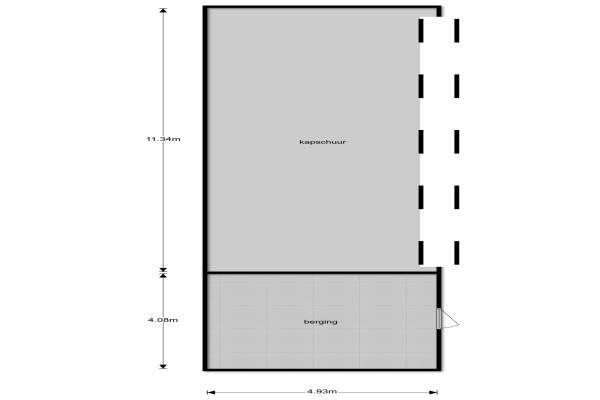
Het adres van deze woning is Westernijtsjerk 6 te Marrum. Het pand heeft een oppervlakte van 184m² en een perceeloppervlakte van 6720m² en heeft 6 kamers kamers waarvan 4 slaapkamers. De geschatte waarde van deze woning is € 429.000.

Bekijk alle woningen in Verspreide huizen Marrum-Westernijkerk

Gegevens van Eengezinswoning, vrijstaande woning

Bouwjaar
Voor 1906
Geschatte waarde
€ 429.000
Oppervlakte
184 m2
Inhoud
803 m3
Aantal kamers
6 kamers
Slaapkamers
4
Badkamers
2 aparte toiletten
Soort bouw
Bestaande bouw
Eigendomssituatie
Volle eigendom
Ligging
Beschutte ligging, buiten bebouwde kom en landelijk gelegen
Tuin
Tuin rondom

Voorzieningen in de buurt

Binnenkijken bij Westernijtsjerk 6 te Marrum

Meer meldingen in deze omgeving

Binnenkijken bij
Zaterdag 29-11-2025
Hoge Herenweg 12, 9073TT Marrum

112 melding
Dinsdag 9-9-2025 om 15:12
Ljouwerterdyk, Marrum

112 melding
Maandag 8-9-2025 om 11:14
Ljouwerterdyk, Marrum

112 melding
Maandag 8-9-2025 om 11:14
Ljouwerterdyk, Marrum

112 melding
Donderdag 24-7-2025 om 16:08
Botniaweg, 9073TV Marrum

112 melding
Donderdag 24-7-2025 om 16:06
Botniaweg, 9073TV Marrum

112 melding
Donderdag 24-7-2025 om 16:06
Botniaweg, 9073TV Marrum

112 melding
Donderdag 24-7-2025 om 16:05
Botniaweg, 9073TV Marrum

Direct een e-mail ontvangen bij nieuwe meldingen in deze regio?

Meld je dan GRATIS aan voor de Oozo Alert service voor Verspreide huizen Marrum-Westernijkerk

Instellen

Meer nieuws in Verspreide huizen Marrum-Westernijkerk

Weten hoe eenvoudig het is om af te vallen? Zonder pillen en smeersels en zonder je in het zweet te werken!
Kijk op eenvoudig-afvallen.nl

© 2012 - 2025 OOZO.nl - info@oozo.nl - Gegevens verwijderen? | Disclaimer | Privacy statement