Woning Deniastate 6 Hallum

Deniastate 6, 9074ME Hallum

Ontvang updates voor Hallum

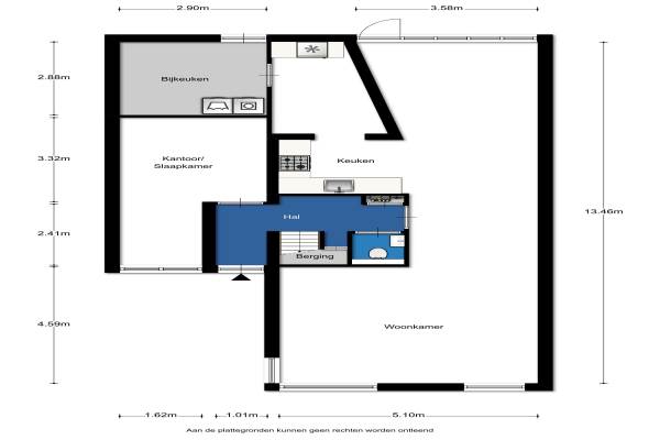
Het adres van deze woning uit 2000 is Deniastate 6 te Hallum. Het pand heeft een oppervlakte van 185m² en een perceeloppervlakte van 322m² en heeft 7 kamers kamers waarvan 6 slaapkamers. De geschatte waarde van deze woning is € 275.000.

Bekijk alle woningen in Hallum

Gegevens van Eengezinswoning, vrijstaande woning

Bouwjaar
2000
Geschatte waarde
€ 275.000
Oppervlakte
185 m2
Inhoud
635 m3
Aantal kamers
7 kamers
Slaapkamers
6
Badkamers
1 apart toilet
Soort bouw
Bestaande bouw
Eigendomssituatie
Volle eigendom
Tuin
Achtertuin en voortuin
Achtertuin
150 m² (15m diep en 10m breed)

Voorzieningen in de buurt

Binnenkijken bij Deniastate 6 te Hallum

Meer meldingen in deze omgeving

112 melding
Maandag 24-11-2025 om 11:00
Goslinghastraat & Mounebuorren, 9074 Hallum

112 melding
Maandag 24-11-2025 om 09:34
Doniaweg, Hallum

112 melding
Maandag 24-11-2025 om 09:34
Doniaweg, Hallum

112 melding
Zondag 23-11-2025 om 19:29
Goslinghastraat & Mounebuorren, 9074 Hallum

112 melding
Vrijdag 21-11-2025 om 19:06
Goslinghastraat & Mounebuorren, 9074 Hallum

112 melding
Vrijdag 21-11-2025 om 12:42
It Pypke, 9074LG Hallum

112 melding
Vrijdag 21-11-2025 om 11:46
Luniastate, 9074MC Hallum

Nieuw bedrijf
November 2025
Finne 19, 9074AS Hallum

Direct een e-mail ontvangen bij nieuwe meldingen in deze regio?

Meld je dan GRATIS aan voor de Oozo Alert service voor Hallum

Instellen

Meer nieuws in Hallum

Weten hoe eenvoudig het is om af te vallen? Zonder pillen en smeersels en zonder je in het zweet te werken!
Kijk op eenvoudig-afvallen.nl

© 2012 - 2025 OOZO.nl - info@oozo.nl - Gegevens verwijderen? | Disclaimer | Privacy statement