Woning Jouwsmastraat 2 Hallum

Jouwsmastraat 2, 9074AR Hallum

Ontvang updates voor Hallum

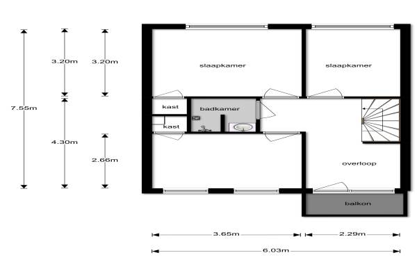
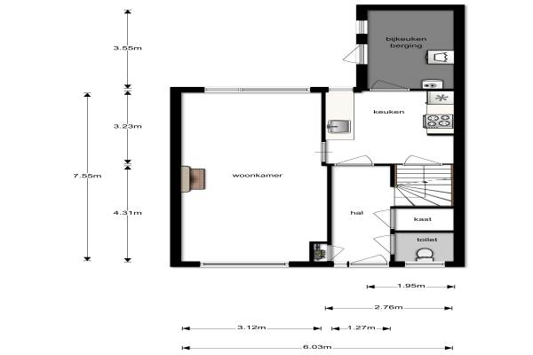
Het adres van deze woning uit 1970 is Jouwsmastraat 2 te Hallum. Het pand heeft een oppervlakte van 98m² en een perceeloppervlakte van 227m² en heeft 5 kamers kamers waarvan 3 slaapkamers. De geschatte waarde van deze woning is € 115.000.

Bekijk alle woningen in Hallum

Gegevens van Eengezinswoning, 2-onder-1-kapwoning

Bouwjaar
1970
Geschatte waarde
€ 115.000
Oppervlakte
98 m2
Inhoud
371 m3
Aantal kamers
5 kamers
Slaapkamers
3
Soort bouw
Bestaande bouw
Eigendomssituatie
Volle eigendom
Ligging
Aan rustige weg en in woonwijk
Tuin
Voortuin en achtertuin
Achtertuin
20 m² (4m diep en 5m breed)

Voorzieningen in de buurt

Binnenkijken bij Jouwsmastraat 2 te Hallum

Meer meldingen in deze omgeving

112 melding
Donderdag 16-4-2026 om 13:59
Langebuorren, 9074CE Hallum

112 melding
Donderdag 16-4-2026 om 10:34
Juffer Frederikestrjitte, Hallum

112 melding
Donderdag 16-4-2026 om 10:34
Juffer Frederikestrjitte, Hallum

112 melding
Donderdag 16-4-2026 om 08:45
Langebuorren, 9074CE Hallum

Faillissement
Woensdag 15-4-2026
Langebuorren 41, 9074CG Hallum

112 melding
Dinsdag 14-4-2026 om 10:58
Juffer Frederikestrjitte, 9074BR Hallum

Binnenkijken bij
Maandag 13-4-2026
De Tsjalk 9, 9074DD Hallum

112 melding
Vrijdag 10-4-2026 om 12:08
Grote Streek, 9074CB Hallum

Direct een e-mail ontvangen bij nieuwe meldingen in deze regio?

Meld je dan GRATIS aan voor de Oozo Alert service voor Hallum

Instellen

Meer nieuws in Hallum

Weten hoe eenvoudig het is om af te vallen? Zonder pillen en smeersels en zonder je in het zweet te werken!
Kijk op eenvoudig-afvallen.nl

© 2012 - 2026 OOZO.nl - info@oozo.nl - Gegevens verwijderen? | Disclaimer | Privacy statement