Woning Sexbierumerweg 41 Franeker

Sexbierumerweg 41, 8802PK Franeker

Ontvang updates voor Sexbierumerplan

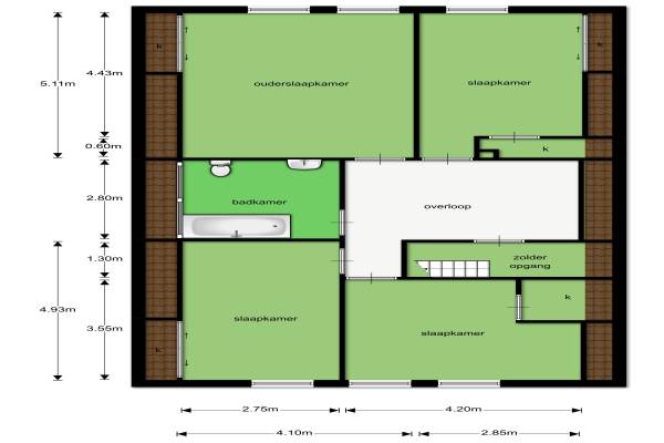
Het adres van deze woning uit 1979 is Sexbierumerweg 41 te Franeker. Het pand heeft een oppervlakte van 177m² en een perceeloppervlakte van 690m² en heeft 7 kamers kamers waarvan 5 slaapkamers. De geschatte waarde van deze woning is € 359.500.

Bekijk alle woningen in Sexbierumerplan

Gegevens van Eengezinswoning, vrijstaande woning

Bouwjaar
1979
Geschatte waarde
€ 359.500
Oppervlakte
177 m2
Inhoud
650 m3
Aantal kamers
7 kamers
Slaapkamers
5
Badkamers
1 badkamer en 1 apart toilet
Soort bouw
Bestaande bouw
Eigendomssituatie
Volle eigendom
Ligging
Aan rustige weg en vrij uitzicht
Tuin
Tuin rondom

Voorzieningen in de buurt

Binnenkijken bij Sexbierumerweg 41 te Franeker

Meer meldingen in deze omgeving

Binnenkijken bij
Woensdag 29-10-2025
A S Talmaplein 29, 8802RW Franeker

Binnenkijken bij
Vrijdag 19-9-2025
Sexbierumerweg 19, 8802PK Franeker

Nieuw bedrijf
Juli 2025
J G Suurhoffstraat 5, 8802MA Franeker

Nieuw bedrijf
Juli 2025
J G Suurhoffstraat 5, 8802MA Franeker

Onroerend goed
Zaterdag 21-6-2025
L.J.M. Beelplein 21a- 21f, 8802RM Franeker

Binnenkijken bij
Donderdag 19-6-2025
Binnenhof 38, 8802ME Franeker

Binnenkijken bij
Maandag 12-5-2025
Jhr A F de Savornin Lohmanstraat 34, 8802RH Franeker

112 melding
Zaterdag 10-5-2025 om 22:19
Jhr A F de Savornin Lohmanstraat, Franeker

Direct een e-mail ontvangen bij nieuwe meldingen in deze regio?

Meld je dan GRATIS aan voor de Oozo Alert service voor Sexbierumerplan

Instellen

Meer nieuws in Sexbierumerplan

Weten hoe eenvoudig het is om af te vallen? Zonder pillen en smeersels en zonder je in het zweet te werken!
Kijk op eenvoudig-afvallen.nl

© 2012 - 2025 OOZO.nl - info@oozo.nl - Gegevens verwijderen? | Disclaimer | Privacy statement