Woning Ypeijsingel 29 Franeker

Ypeijsingel 29, 8801HP Franeker

Ontvang updates voor C. van Saarloosstraat en omgeving

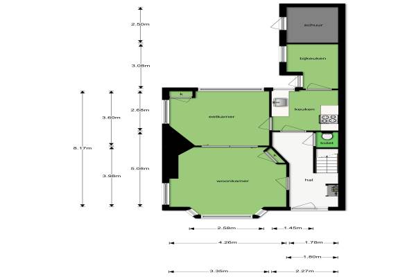
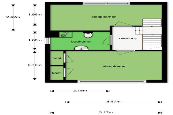
Het adres van deze woning uit 1937 is Ypeijsingel 29 te Franeker. Het pand heeft een oppervlakte van 81m² en een perceeloppervlakte van 229m² en heeft 6 kamers kamers waarvan 2 slaapkamers. De geschatte waarde van deze woning is € 187.500.

Bekijk alle woningen in C. van Saarloosstraat en omgeving

Gegevens van Eengezinswoning, hoekwoning

Bouwjaar
1937
Geschatte waarde
€ 187.500
Oppervlakte
81 m2
Inhoud
325 m3
Aantal kamers
6 kamers
Slaapkamers
2
Badkamers
1 apart toilet
Soort bouw
Bestaande bouw
Eigendomssituatie
Volle eigendom
Ligging
Aan water, aan park, in woonwijk, vrij uitzicht en aan vaarwater
Tuin
Tuin rondom

Voorzieningen in de buurt

Binnenkijken bij Ypeijsingel 29 te Franeker

Meer meldingen in deze omgeving

Binnenkijken bij
Donderdag 16-4-2026
Professor J Greidanusstraat 19, 8801GN Franeker

Binnenkijken bij
Zaterdag 28-2-2026
Wijtze Ennemastraat 4, 8801GR Franeker

Binnenkijken bij
Vrijdag 23-1-2026
Willem Westrastraat 19, 8801HC Franeker

112 melding
Vrijdag 16-1-2026 om 18:54
Fonteinstraat, Franeker

112 melding
Vrijdag 16-1-2026 om 18:52
Fonteinstraat, Franeker

Binnenkijken bij
Dinsdag 16-12-2025
Willem Koningstraat 17, 8801GX Franeker

Binnenkijken bij
Zaterdag 29-11-2025
Mr G Schotstraat 10, 8801GG Franeker

Nieuw bedrijf
November 2025
Professor J Bogermanstraat 5, 8801HA Franeker

Direct een e-mail ontvangen bij nieuwe meldingen in deze regio?

Meld je dan GRATIS aan voor de Oozo Alert service voor C. van Saarloosstraat en omgeving

Instellen

Meer nieuws in C. van Saarloosstraat en omgeving

Weten hoe eenvoudig het is om af te vallen? Zonder pillen en smeersels en zonder je in het zweet te werken!
Kijk op eenvoudig-afvallen.nl

© 2012 - 2026 OOZO.nl - info@oozo.nl - Gegevens verwijderen? | Disclaimer | Privacy statement