Woning Leeuwarderweg 23 Franeker

Leeuwarderweg 23, 8801BS Franeker

Ontvang updates voor Watertoren, Bloemketerp en Zevenhuizen

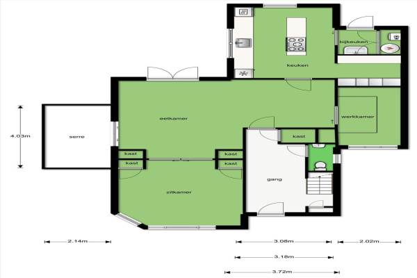
Het adres van deze woning uit 1914 is Leeuwarderweg 23 te Franeker. Het pand heeft een oppervlakte van 161m² en een perceeloppervlakte van 334m² en heeft 8 kamers kamers waarvan 3 slaapkamers. De geschatte waarde van deze woning is € 498.000.

Bekijk alle woningen in Watertoren, Bloemketerp en Zevenhuizen

Gegevens van Villa, vrijstaande woning

Bouwjaar
1914
Geschatte waarde
€ 498.000
Oppervlakte
161 m2
Inhoud
575 m3
Aantal kamers
8 kamers
Slaapkamers
3
Soort bouw
Bestaande bouw
Eigendomssituatie
Volle eigendom
Ligging
In centrum en vrij uitzicht
Tuin
Tuin rondom

Voorzieningen in de buurt

Binnenkijken bij Leeuwarderweg 23 te Franeker

Meer meldingen in deze omgeving

112 melding
Woensdag 17-12-2025 om 12:20
Burgemeester J Dijkstraweg, 8801PG Franeker

112 melding
Woensdag 17-12-2025 om 12:20
Burgemeester J Dijkstraweg, 8801PG Franeker

Nieuw bedrijf
December 2025
Prins Willem de Zwijgerlaan 7, 8801AR Franeker

Nieuw bedrijf
December 2025
Prins Willem de Zwijgerlaan 7, 8801AR Franeker

112 melding
Maandag 15-12-2025 om 12:27
Albrondalaan, 8801BZ Franeker

Binnenkijken bij
Woensdag 10-12-2025
Leeuwarderweg 11, 8801BS Franeker

Faillissement
Donderdag 4-12-2025
Zevenhuizen 53, 8801AW Franeker

112 melding
Maandag 1-12-2025 om 19:24
Burgemeester J Dijkstraweg, 8801PG Franeker

Direct een e-mail ontvangen bij nieuwe meldingen in deze regio?

Meld je dan GRATIS aan voor de Oozo Alert service voor Watertoren, Bloemketerp en Zevenhuizen

Instellen

Meer nieuws in Watertoren, Bloemketerp en Zevenhuizen

Weten hoe eenvoudig het is om af te vallen? Zonder pillen en smeersels en zonder je in het zweet te werken!
Kijk op eenvoudig-afvallen.nl

© 2012 - 2025 OOZO.nl - info@oozo.nl - Gegevens verwijderen? | Disclaimer | Privacy statement