Woning Lage Huis 85 Beesd

Lage Huis 85, 4153CT Beesd

Ontvang updates voor Beesd West

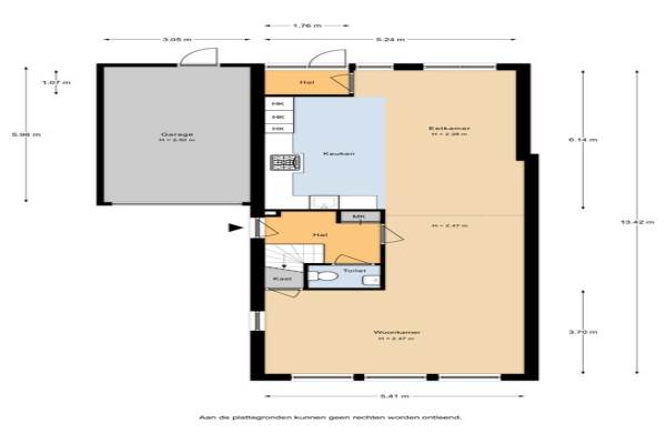
Het adres van deze woning uit 1998 is Lage Huis 85 te Beesd. Het pand heeft een oppervlakte van 154m² en een perceeloppervlakte van 240m² en heeft 6 kamers kamers waarvan 5 slaapkamers. De geschatte waarde van deze woning is € 469.000.

Bekijk alle woningen in Beesd West

Gegevens van Eengezinswoning

Bouwjaar
1998
Geschatte waarde
€ 469.000
Oppervlakte
154 m2
Inhoud
602 m3
Aantal kamers
6 kamers
Slaapkamers
5
Badkamers
1 badkamer en 1 apart toilet
Soort bouw
Bestaande bouw
Eigendomssituatie
Volle eigendom
Ligging
In woonwijk
Tuin
Tuin
Achtertuin
70 m² (7,5 meter diep en 9,35 meter breed)

Voorzieningen in de buurt

Binnenkijken bij Lage Huis 85 te Beesd

Meer meldingen in deze omgeving

Nieuw bedrijf
November 2025
Prins Mauritssingel 6, 4153BR Beesd

112 melding
Vrijdag 7-11-2025 om 14:32
Pastoor J. van Hovestraat, Beesd

112 melding
Vrijdag 7-11-2025 om 13:44
Pastoor J. van Hovestraat, Beesd

112 melding
Vrijdag 7-11-2025 om 13:42
Pastoor J. van Hovestraat, Beesd

Nieuw bedrijf
Oktober 2025
Achterstraat 32c, 4153AR Beesd

112 melding
Zondag 19-10-2025 om 20:25
Veerweg, 4153AS Beesd

Binnenkijken bij
Zondag 19-10-2025
Pastoor J. van Hovestraat 43, 4153XT Beesd

Nieuw bedrijf
Oktober 2025
Huis te Beestlaan 5, 4153CE Beesd

Direct een e-mail ontvangen bij nieuwe meldingen in deze regio?

Meld je dan GRATIS aan voor de Oozo Alert service voor Beesd West

Instellen

Meer nieuws in Beesd West

Weten hoe eenvoudig het is om af te vallen? Zonder pillen en smeersels en zonder je in het zweet te werken!
Kijk op eenvoudig-afvallen.nl

© 2012 - 2025 OOZO.nl - info@oozo.nl - Gegevens verwijderen? | Disclaimer | Privacy statement